
Utilitati generale: Electricitate, Curent trifazic, Apa, Gaz, Canalizare, Cablu TV
Finisaje:Podele (Linoleum), Ferestre cu geam termopan (PVC), Iluminat (Lampi, Spoturi, Aplice, Exterior cladire, Lumina naturala)
Amenajare strazi (Asfaltate), Iluminat stradal
Vecinatati: Autostrada Transilvania A3 , RAR Gilau, zona industriala Vest
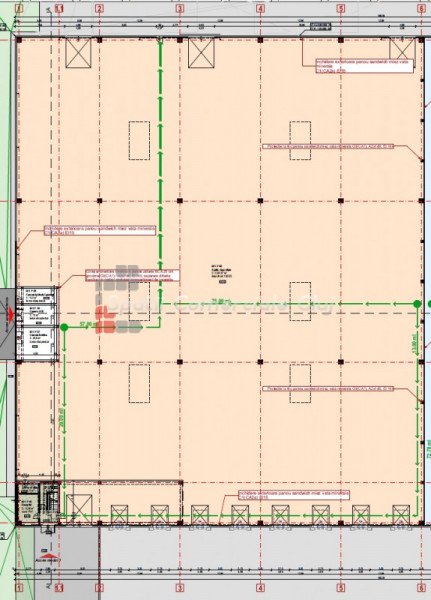
Se ofera spre inchiriere depozit clasa A, constructie 2021 in curs de finalizare, zona nod autostrada A3 Gilau Spatiul are suprafata de 4297mp utili (depozitare, productie) si o suprafata de 214mp utili birouri, vestiare, grupuri sanitare, oficiu, toate finisate la cheie. Standardul de livrare cuprinde materiale calitative de ultima generatie: iluminat LED, sistem de ventilo-convectoare, sistem anti-incendiu cu sprinklere, trape de fum, iluminatoare, hidranti, podea quartz (aprobat pentru activitati medicale), dock-uri cu rampe hidraulice, usi drive-in. Inaltimea utila este de 10m Gridul (structura stalpilor de rezistenta) este de 12 x 24m. Depozitul are prevazute 8 rampe de andocare si 4 usi drive-in. Pentru mai multe informatii va stau la dispozitie