
Utilitati generale: Electricitate, Curent trifazic, Apa, Gaz, Canalizare, Cablu TV
Sistem de incalzire: Centrala termica
Climatizare: Aer conditionat
Finisaje:Izolatii termice (Exterior), Podele (Gresie), Ferestre cu geam termopan (PVC), Iluminat (Lampi, Spoturi, Aplice, Exterior cladire, Lumina naturala)
Dotari: Contorizare (Apometre, Contor gaz), Dotari imobil (Curte)
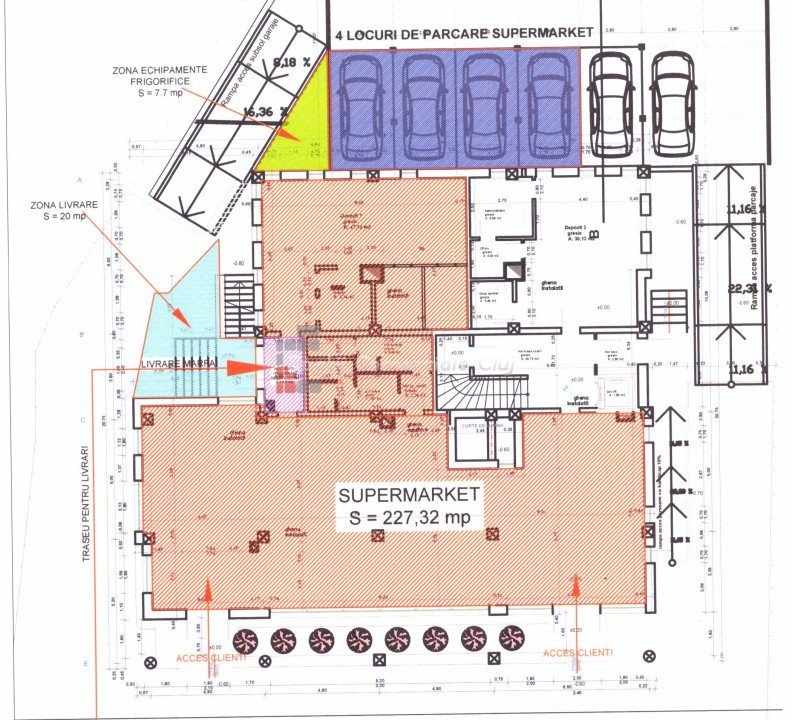
Oferim spre inchiriere spatiu comercial in suprafata totala de 260mp, situat in inima cartierului Marasti, zona Pizzeria Montana Spatiul este situat la parter de imobil nou, cu vitrina foarte generoasa spre strada. Inaltimea este de 3,50m, zona aprovizionare marfa, toate utilitatile pentru activitati comerciale. Spatiul este impartit in sala de vanzare spre strada, zona receptie marfa, grupuri sanitare si depozit. In curtea imobilului sunt 4 locuri de parcare aferente spatiului comercial. Pentru vizionari si informatii suplimentare va rog sa ne contactati.