

Utilitati generale: Electricitate, Apa, Gaz, Canalizare, Cablu TV
Sistem de incalzire: Centrala termica, Calorifere
Finisaje:Izolatii termice (Exterior), Ferestre cu geam termopan (PVC), Iluminat (Exterior cladire, Lumina naturala)
Dotari: Contorizare (Apometre, Contor gaz), Dotari imobil (Interfon, Lift), CFR, Parcare proprie, Spatiu verde amenajat
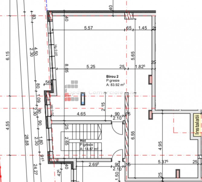
Spatiul este situat intr-un imobil nou din zona Spitalui Militar si FSPAC. Aflat la mezanin, acesta dispune de suprafata vitrata mare catre o strada intens circulata si de acces separat de casa scarii. Suprafata utila este de 84 mp, fiind compartimentat in 2 incaperi generoase. Locatia excelenta si imobilul cu prestanta, recomanda acest spatiu ca fiind excelent pentru multiple activitati, avand inclusiv potential comercial. Este pretabil pentru activitati de birou dar si activitati medicale sau pentru profesii liberale.