

Utilitati generale: Electricitate, Apa, Gaz, Canalizare, Cablu TV
Sistem de incalzire: Centrala termica
Finisaje:Izolatii termice (Exterior), Podele (Parchet, Gresie), Ferestre cu geam termopan (PVC), Iluminat (Lampi, Spoturi, Aplice)
Dotari: Contorizare (Apometre, Contor caldura, Contor gaz), Dotari imobil (Interfon, Curte, Gradina), Spatiu depozitare, Dependinte, Parcare proprie, Spatiu verde amenajat
Amenajare strazi (Asfaltate), Iluminat stradal, Mijloace de transport in comun
Vecinatati: Sigma Center
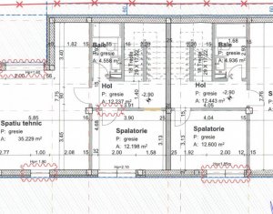
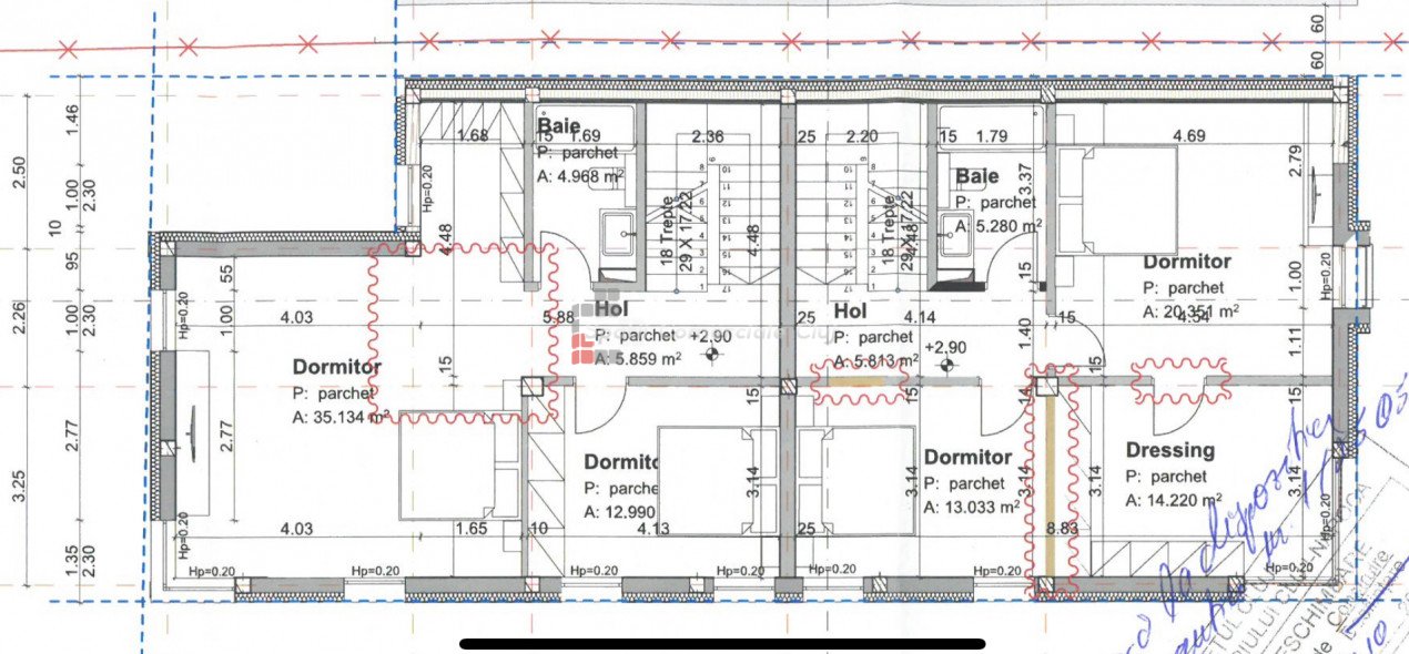
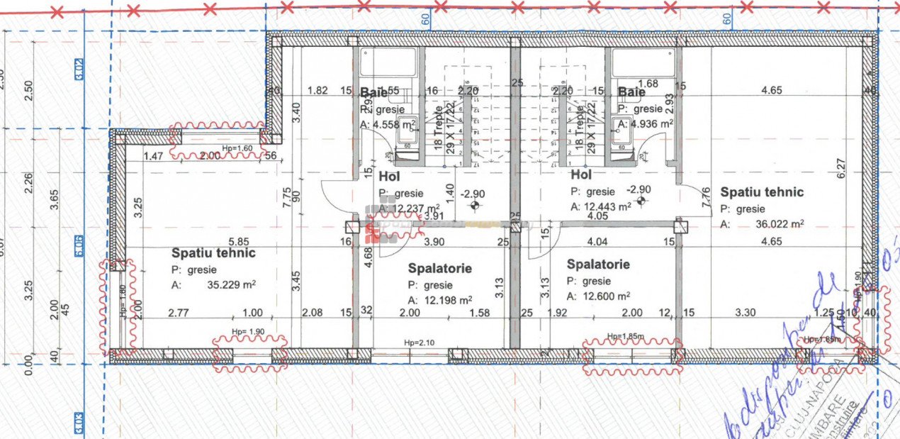
Va prezentam un imobil multifunctional situat in cartierul Zorilor, in apropiere de Sigma Center. Este pozitionat excelent, aproape de punctele majore de interes din cartier, precum si de centrul orasului. Are urmatoarele caracteristici: - impartit in 2 corpuri cu cate 4 apartamente fiecare (aprox. 50-55 mp util fiecare); - suprafata utila 460 mp; - suprafata teren 709 mp; - curte pavata, adaptata pentru 8-10 locuri de parcare; - regim de inaltime D+P+2E; - 8 apartamente de 2 si 3 camere, foarte bine impartite, contorizate si termostatate separat; - camera tehnica la demisol, dotata cu 2 centrale termice + boiler; - predare la stadiul ultrafinisat, la cererea viitorilor chiriasi; - view superb asupra orasului; - imobilul se preteaza excelent atat pentru birouri cat si pentru clinica medicala, aparthotel etc.