
Utilitati generale: Electricitate, Curent trifazic, Apa, Gaz, Canalizare, Cablu TV
Sistem de incalzire: Centrala termica, Calorifere
Finisaje:Izolatii termice (Exterior), Ferestre cu geam termopan (PVC, Aluminiu), Iluminat (Lampi, Spoturi, Aplice, Exterior cladire, Lumina naturala)
Dotari: Contorizare (Apometre, Contor gaz), Dotari imobil (Interfon, Curte, Gradina)
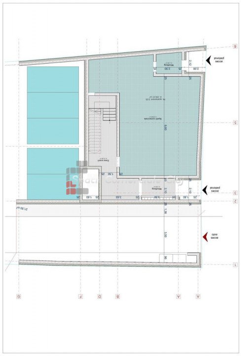
Se inchiriaza spatiu comercial in suprafata de 90mp open space, situat in zona pod Decebal. Facand parte dintr-un complex rezidential nou, spatiul dispune de vitrina foarte generoasa. Exista posibilitate de amenajare si compartimentare interioara dupa necesitati. Include 2 locuri de parcare in curtea imobilului. Este potrivit tuturor tipurilor de activitati comerciale, servicii, showroom, birou.