
Utilitati generale: Electricitate, Curent trifazic, Apa, Gaz, Canalizare, Cablu TV
Sistem de incalzire: Centrala termica
Climatizare: Aer conditionat
Finisaje:Izolatii termice (Exterior), Podele (Gresie)
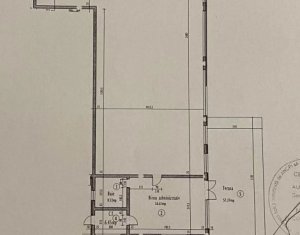
Va prezentam spre inchiriere spatiu comercial, magazin de prezentare sau showroom, situat in Marasti. Suprafata utila interioara este de 383mp, compartimentat in sala de prezentare 332mp, birou, depozit si grup sanitar. Are 3 intrari separate in spatiu, terasa proprie 57mp, 2 locuri de parcare in subteran. Este ideal pentru magazin de prezentare si vanzare, showroom, servicii, birouri, etc.