

Utilitati generale: Electricitate, Apa, Gaz, Canalizare, Cablu TV
Sistem de incalzire: Centrala termica
Climatizare: Aer conditionat
Finisaje:Izolatii termice (Exterior), Ferestre cu geam termopan (PVC), Iluminat (Lampi, Spoturi, Aplice, Exterior cladire, Lumina naturala)
Dotari: Contorizare (Apometre, Contor gaz), Dotari imobil (Videointerfon, Lift, Spatii agrement, Curte comuna), CFR
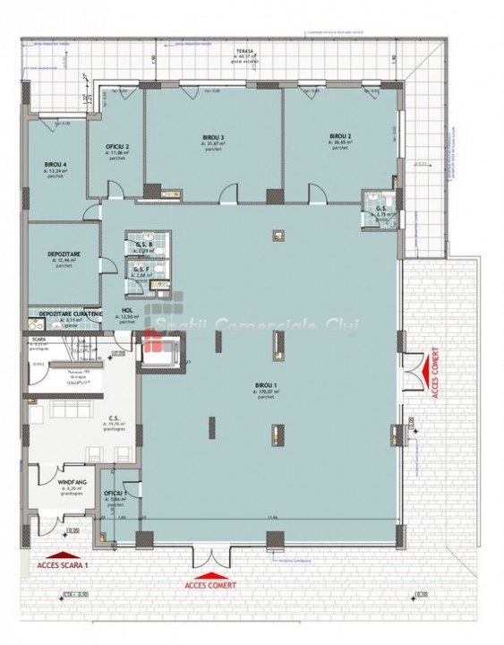
Va prezentam spre inchiriere un spatiu cu destinatie birou, pentru activitati office sau diverse servicii. Spatiul este situat in noua zona de dezvoltare comerciala si rezidentiala de langa parcul Gheorgheni. Are suprafata utila de 287mp plus terasa proprie de 60mp. Compartimentarea este open space (170mp), 3 birouri separate, grupuri sanitare si zona de depozitare. Exista 3 intrari in spatiu, incalzire in pardoseala, sistem de aer conditionat. Se inchiriaza la stadiul semifinisat.