
Utilitati generale: Electricitate, Apa, Gaz, Canalizare, Cablu TV
Sistem de incalzire: Centrala termica, Calorifere
Climatizare: Aer conditionat
Finisaje:Izolatii termice (Exterior), Podele (Parchet), Ferestre cu geam termopan (PVC), Iluminat (Lampi, Spoturi, Aplice, Exterior cladire, Lumina naturala)
Dotari: Contorizare (Apometre, Contor gaz), Dotari imobil (Curte comuna)
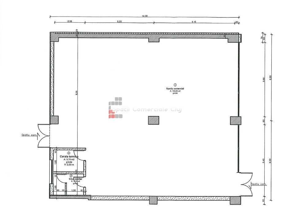
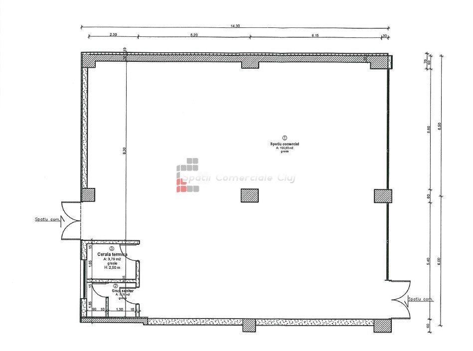
Va prezentam spre inchiriere spatiu comercial situat in zona Autogarii, la principala, vitrina generoasa, trafic intens. Este open space 162mp, vitrina 12m la principala, 2 locuri de parcare in curte. Are intrare directa de pe trotuar, usa pt aprovizionare din spate. Este finisat, aer conditionat, 2 grupuri sanitare, tavan casetat, centrala proprie. Este ideal pentru comert de proximitate si/sau retail. Disponibil din Septembrie 2022