

Utilitati generale: Electricitate, Curent trifazic, Apa, Gaz, Canalizare, Cablu TV
Sistem de incalzire: Centrala termica, Calorifere
Finisaje:Podele (Parchet, Gresie), Ferestre cu geam termopan (PVC), Iluminat (Lampi, Lumina naturala)
Dotari: Contorizare (Apometre, Contor gaz), Dotari imobil (Curte comuna)
Amenajare strazi (Asfaltate), Iluminat stradal, Mijloace de transport in comun
Vecinatati: Autogara, Corneliu Coposu, Scoala agentilor de politie
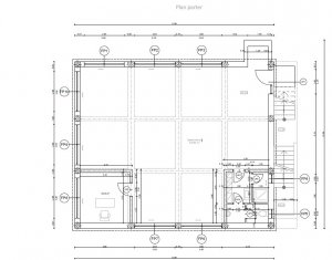
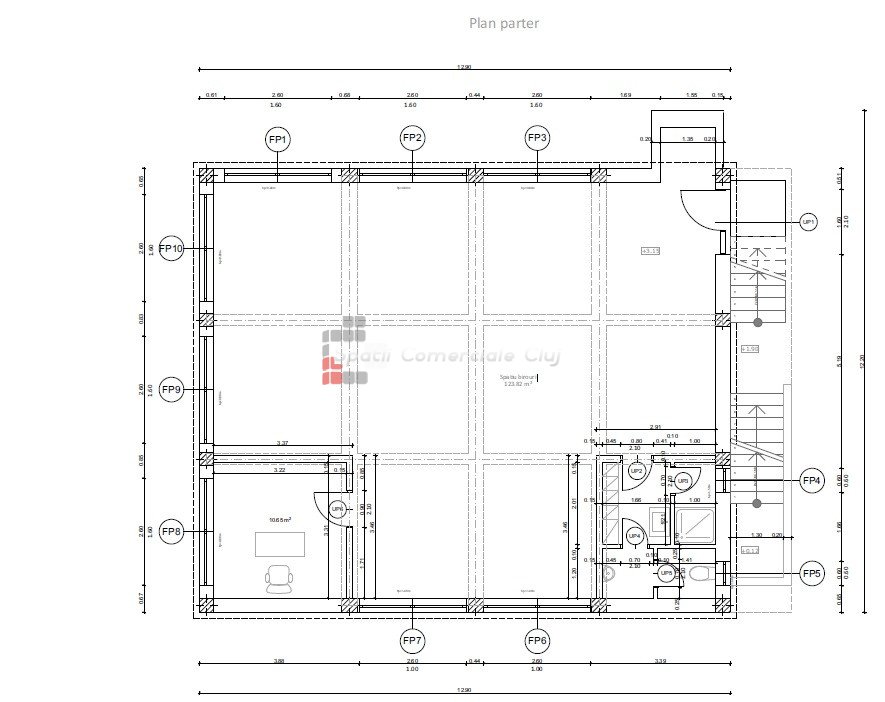
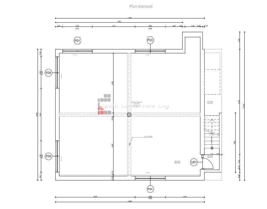
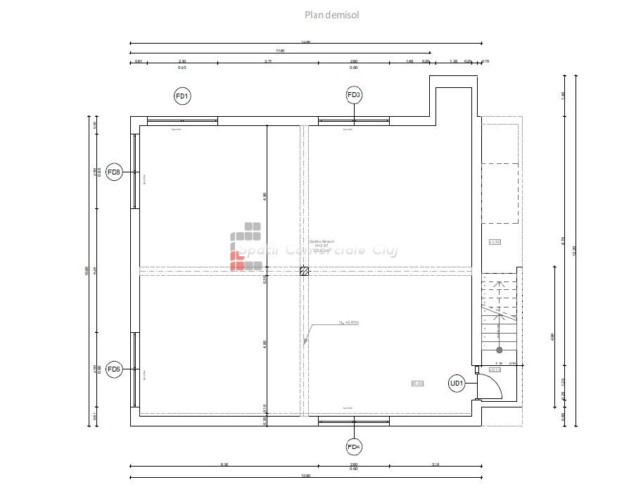
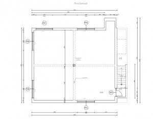
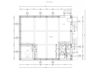
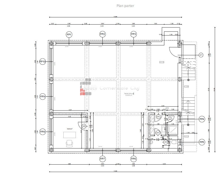
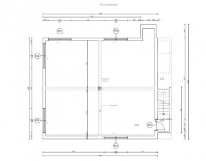
Disponibil din Octombrie! Va prezentam un imobil individual, dispus demisol si parter inalt, cu acces separat pe fiecare nivel. Fiecare etaj are o suprafata de 120mp, centrala proprie, ferestre termopan, termoizolatie. Are acces camion sau chiar TIR pana in fata spatiului. Imobilul este versatil, potrivit pentru orice tip de activitate, fara locuinte in preajma.