
Utilitati generale: Electricitate, Apa, Gaz, Canalizare, Cablu TV
Sistem de incalzire: Centrala termica, Calorifere
Finisaje:Izolatii termice (Exterior), Podele (Parchet), Ferestre cu geam termopan (PVC), Iluminat (Lampi, Spoturi, Lumina naturala)
Dotari: Contorizare (Apometre, Contor gaz), Dotari imobil (Curte, Curte comuna), Spatiu depozitare, Parcare proprie, Spatiu verde amenajat
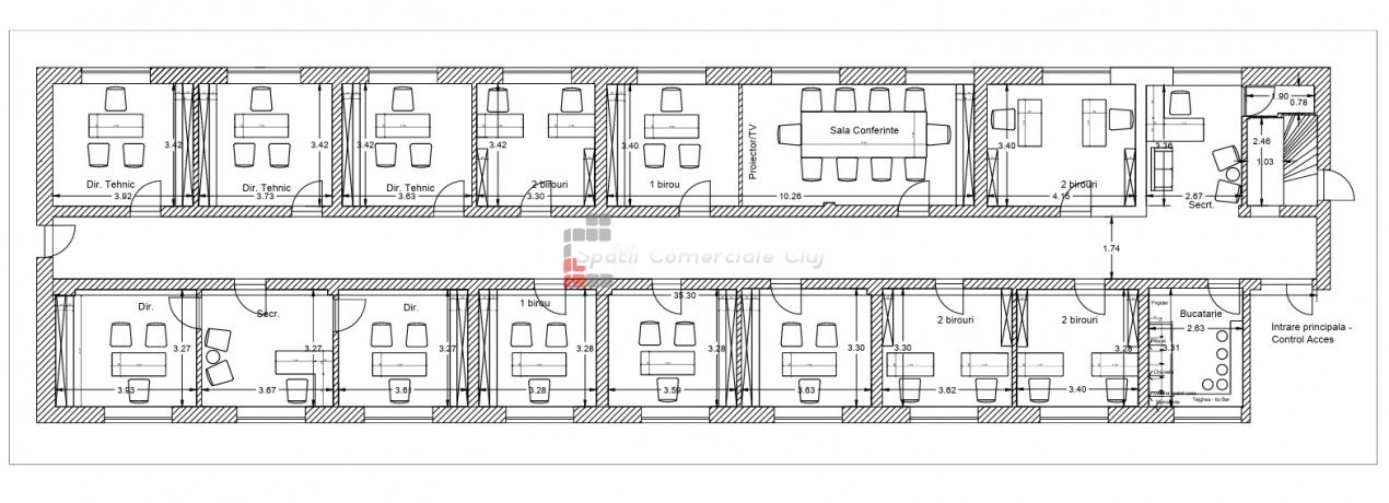
Inchiriere birouri recent renovate situate in Grigorescu, zona pietei agroalimentare. Suprafata de 400mp, compartimentat in 14 incaperi decomandate de un hol central. Centrala proprie pe gaz, ferestre termopan, bucatarie mobilata, grupuri sanitare, camera server. 2 boxe de 40/40 mp gratuit (depozitare) la parter si o camera pentru arhiva. Usi si parchet nou, instalatii sanitare si electrice noi. Se ofera 15 locuri de parcare in curtea imobilului. Locatie foarte usor accesibila auto cat si cu transportul in comun.