
Utilitati generale: Electricitate, Apa, Canalizare, Cablu TV
Finisaje:Izolatii termice (Exterior), Podele (Mocheta), Ferestre cu geam termopan (Aluminiu), Iluminat (Lampi, Spoturi, Aplice, Exterior cladire, Lumina naturala)
Dotari: Contorizare (Apometre), Dotari imobil (Videointerfon, Lift), CFR, Parcare acoperita, Spatiu verde amenajat
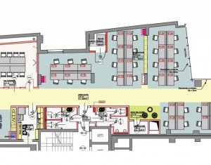
Inchiriere spatiu birouri in cladire office din zona centrala Situat la etajul 11 cu vedere panoramica, spatiul disponibil are suprafata de 306mp utili. Este impartit in zona open space, 2 meeting rooms, 2 birouri manager, bucatarie, grupuri sanitare proprii, zona de relaxare. Printre facilitati amintesc partea de receptie permanenta, control acces, podea tehnica cu cablaje de retea existente, iluminat LED, server room, centrala de incendiu, sprinklere. Mobilierul existent in spatiu este inclus in costul chiriei si este de o calitate deosebita. Locuri de parcare in subteran contra cost Service Charge 5eur/mp