

Utilitati generale: Electricitate, Apa, Canalizare, Cablu TV
Sistem de incalzire: Centrala termica
Finisaje:Izolatii termice (Exterior), Ferestre cu geam termopan (PVC), Iluminat (Exterior cladire, Lumina naturala)
Dotari: Contorizare (Apometre, Contor gaz), Dotari imobil (Curte)
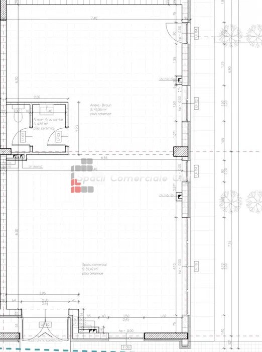
Inchiriere spatiu comercial la parterul unui imobil recent construit situat pe calea Baciului in zona Lidl Este de tip open space cu posibilitate de compartimentare in functie de tipul de activiate. Se preda cu incalzire in pardosea, instalatii si bai amenajate sau se poate negocia si predare la cheie 2 intrari, spatiu vitrat generos, zona cu trafic foarte intens, expunere comerciala Potrivit tuturor activitatilor comerciale sau de servicii