
Utilitati generale: Electricitate, Apa, Gaz, Canalizare
Sistem de incalzire: Centrala termica, Calorifere
Climatizare: Aer conditionat
Finisaje:Izolatii termice (Exterior), Podele (Mocheta), Ferestre cu geam termopan (PVC), Iluminat (Lampi, Exterior cladire)
Dotari: Contorizare (Complet, Apometre, Contor gaz)
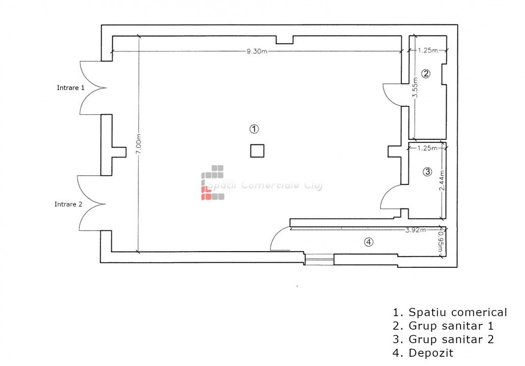
Se inchiriaza spatiu comerciale pe una din cele mai vibrante strazi ale orasului. In complex Studentesc Hasdeu, srtada Piezisa. Spatiul are o suprafata de 88mp, compus din sala de vanzare, 2 grupuri sanitare, mic depozit Finisat si utilat cum se vede in fotografii. Poate suferi reconversie pentru alt tip de activitate.