

Utilitati generale: Electricitate, Curent trifazic, Apa, Gaz, Canalizare
Sistem de incalzire: Centrala termica
Finisaje:Izolatii termice (Exterior), Podele (Parchet), Iluminat (Lampi, Lumina naturala)
Dotari: Contorizare (Nemobilat, Apometre), Dotari imobil (Curte)
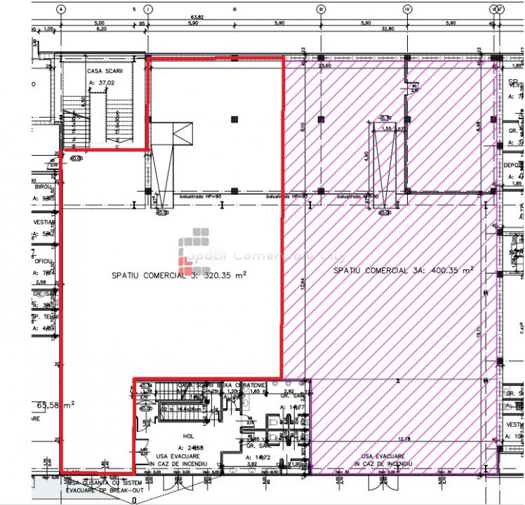
Se inchiriaza spatiu comercial situat in Retail Park din zona Aeroport. Suprafata totala de 492mp este dispus parter 320mp si mezanin 172mp Complexul comercial dispune de peste 200 locuri de parcare exterioare, grupuri sanitare pentru clienti Unde sunt prezenti deja un numar mare de magazine, devenind o zona tot mai comerciala.