
Utilitati generale: Electricitate, Apa, Gaz, Canalizare, Cablu TV
Sistem de incalzire: Calorifere
Finisaje:Izolatii termice (Exterior), Podele (Gresie, Mocheta), Iluminat (Exterior cladire, Lumina naturala)
Dotari: Contorizare (Nemobilat), Dotari imobil (Interfon)
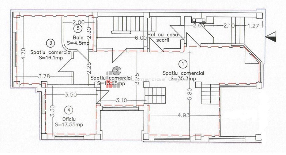
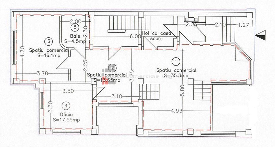
Inchiriere spatiu comercial, situat semicentral langa piata Cipariu si inceputul strazii C-tin Brancusi Parter la strada, expunere comerciala foarte buna. Se compune din sala vanzare si prezentare, 1 birou/oficiu, 1 depozit si grup sanitar.