
Utilitati generale: Electricitate, Apa, Gaz, Canalizare
Sistem de incalzire: Centrala termica
Finisaje:Stare interior (Necesita renovare)
Dotari: Spatiu depozitare
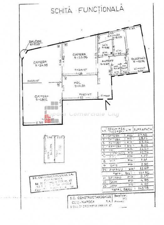
Inchiriem spatiu birou in Centru. Suprafata utila 132 mp. Compartimentat in 4 camere, 2 grupuri sanitare, bucatarie. Incaperi generoase si luminoase. Se va renova inainte de inchiriere. Usor negociabil.