
Utilitati generale: Electricitate, Apa, Canalizare
Sistem de incalzire: Termoficare
Finisaje:Ferestre cu geam termopan (PVC)
Dotari: Contorizare (Nemobilat)
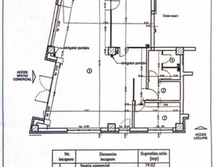
Va propunem spre închiriere un spatiu comercia situat in cartierul Manastur. Este pozitionat la parterul unui bloc nou cu regimul de inaltime S+P+6 , finalizat in anul 2021. Compartimentarea este open space, suprafata utila este de 148mp. Confortul termic este asigurat prin centrala comuna a bl;ocului. In pret este inclus un loc de parcare. Este situat intr-o zona foarte buna, aproape de statii de mijloc de transport in comun si magazine. Spatiul se închiriază la stadiul de semifinisat. Pentru mai multe detalii si pentru a programa o vizionare nu ezitati sa ne contactati.