

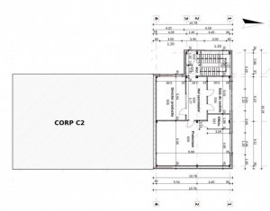
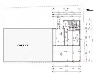
Se da spre Inchiriere pe termen lung spatiu pentru birouri si depozitare (productie). Spatiul se afla pe strada Traian Vuia in apropiere de Ambient. Cladirea este formata din doua corpuri de cladire si se inchiriaza corpul C2 care este parter + etaj cu o suprafata totala de 328 mp . La parter se afla usa principala de intrare in cladire la partea de birouri si o usa model garaj (cu decupare usa acces persoane )care este rabatabila la tavan cu sistem automat de deschidere. Prin usa garaj se intra in partea de depozit care are o inaltime de 3.8 m, spatiu este format din doua incaperi despartite printr-o usa culisanta. In partea de birouri la parter se afla o incapere si baia, iar in partea de sus se afla o incapere din care se intra in alte trei incaperi de birou, fiecare cu intrare separata , cu multi pereti de sticla. Cladirea dispune de sistem VRV Climatizare/Incalzire cu posibilitate de reglare a temperaturii in fiecare incapere separat. Sistem control acces ,sistem video cu camere, sistem securitate, locuri de parcare in fata.