
Utilitati generale: Electricitate, Apa, Gaz, Canalizare, Cablu TV
Sistem de incalzire: Centrala termica
Finisaje:Izolatii termice (Exterior, Bloc izolat termic), Podele (Gresie), Ferestre cu geam termopan (PVC), Iluminat (Exterior cladire)
Dotari: Contorizare (Nemobilat, Contor gaz), Dotari imobil (Spatii agrement)
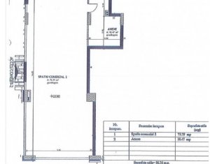
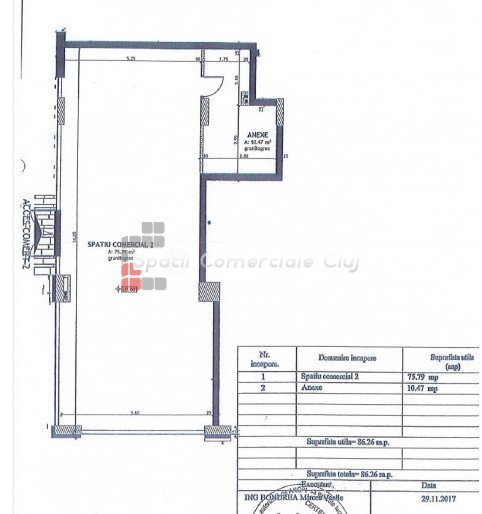
Spatiu comercial 86mp, situat in modernul cartier Sopor, Gheorgheni Suprafata utila este 86 mp. Are 2 fatade vitrate, sala vanzare open space + anexe. Toate utilitatile disponibile, centrala termica individuala si incalzire in pardoseala. Contorizare separata. Disponibil imediat!