

Utilitati generale: Electricitate, Apa, Gaz, Canalizare
Sistem de incalzire: Centrala termica
Finisaje:Izolatii termice (Exterior), Podele (Gresie), Ferestre cu geam termopan (PVC)
Dotari: Contorizare (Apometre, Contor gaz)
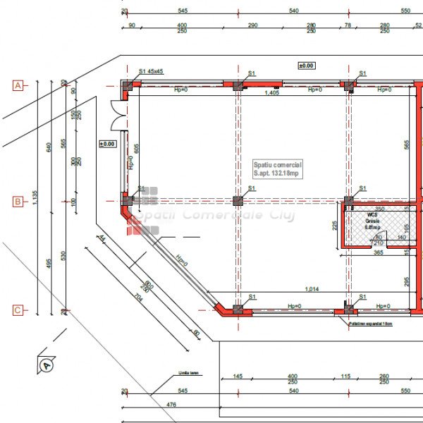
Spatiul se preteaza excelent pentru un showroom sau pentru un birou. Are acces si vitrina catre strada.Dispune de o terasa exterioara si de locuri de parcare.