
Utilitati generale: Electricitate, Apa, Gaz, Canalizare, Cablu TV
Sistem de incalzire: Centrala termica
Finisaje:Podele (Gresie), Iluminat (Lampi, Spoturi, Aplice, Exterior cladire, Lumina naturala)
Dotari: Contorizare (Nemobilat)
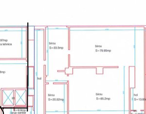
Inchiriere spatiu comercial cu poziționare foarte buna, pretabil multor activitati comerciale, medicale, horeca sau servicii, situat langa sensul giratoriu Clujana- piata 1 Mai Vitrina generoasa, 3 incaperi spațioase având posibilitate de recompartimentare Inaltime utila > 4m, ideal pentru servicii de orice fel, activitati medicale sau comerciale. Multe locuri de parcare in fata si in zona Pret și condiții negociabile