
Utilitati generale: Electricitate, Apa, Gaz, Canalizare, Cablu TV
Sistem de incalzire: Centrala termica, Calorifere
Finisaje:Izolatii termice (Bloc izolat termic), Podele (Gresie), Iluminat (Lumina naturala)
Dotari: Contorizare (Nemobilat), Dotari imobil (Interfon, Curte comuna)
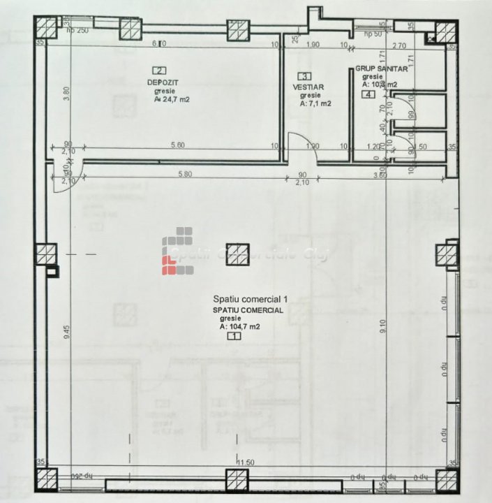
Inchiriere spatiu comercial la intrarea in cartier Borhanci Suprafata 155mp utili, open space, finisat, parter de bloc. Se ofera 3 locuri de parcare in curtea imobilului Acces foarte usor, vitrina generoasa spre curtea imobilului