
Utilitati generale: Electricitate, Apa, Gaz, Canalizare
Sistem de incalzire: Centrala termica, Calorifere
Finisaje:Izolatii termice (Exterior), Podele (Parchet), Iluminat (Exterior cladire, Lumina naturala)
Dotari: Contorizare (Nemobilat), Spatiu depozitare, Anexe, Parcare proprie, Spatiu verde amenajat
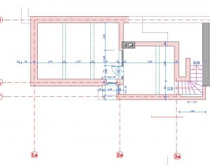
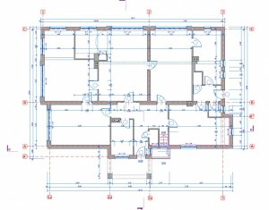
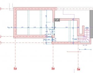
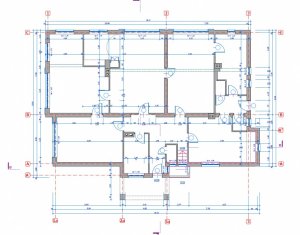
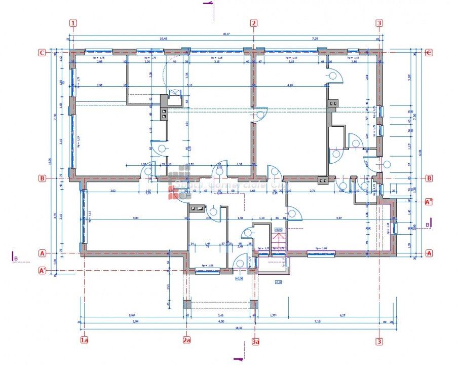
Se inchiriaza in zona centrala, str. Republicii, imobil individual situat pe un teren de peste 2000mp Imobil deosebit, perfect pentru un birou notarial sau sediu reprezentativ Parterul in suprafata de 215mp utili compus din mai multe incaperi generoase, 2 holuri si grupuri sanitare La demisol un spatiu aerisit, ideal pentru depozitare sau arhiva, suprafata utila 35mp. Pod inalt in stare foarte buna, momentan neamenajat. Curtea generoasa de 2000mp