

Utilitati generale: Electricitate, Apa, Gaz, Canalizare
Finisaje:Izolatii termice (Exterior), Stare interior (Buna), Ferestre cu geam termopan (PVC), Iluminat (Spoturi, Exterior cladire, Lumina naturala)
Dotari: Contorizare (Apometre, Contor caldura), Dotari imobil (Interfon, Lift, Curte), CFR
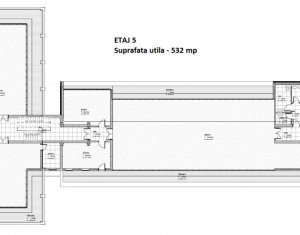
Va prezentam spre inchiriere spatiu de birouri open space, in Gruia, zona Taietura Turcului. Imobilul oferit spre inchiriere se afla intr-un proces de renovare totala, fiind in faza terminala. Cladirea are suprafata totala de 5560 mp, cu dispunere D+P+5E. Fiecare etaj este structurat open space, grupuri sanitare, oficiu, contorizare separata. Se poate inchiria fie intreaga cladire, fie pe etaj, suprafetele disponibile incepand cu 500mp. In curte se pot aloca locuri de parcare, in functie de necesitate.