

Utilitati generale: Electricitate, Apa, Gaz, Canalizare
Sistem de incalzire: Centrala termica, Calorifere
Climatizare: Aer conditionat
Finisaje:Izolatii termice (Exterior), Podele (Parchet, Gresie), Ferestre cu geam termopan (Lemn), Iluminat (Lampi, Spoturi, Aplice, Exterior cladire)
Dotari: Contorizare (Apometre, Contor gaz), Dotari imobil (Interfon, Acoperis, Curte, Gradina), Parcare proprie, Parcare acoperita
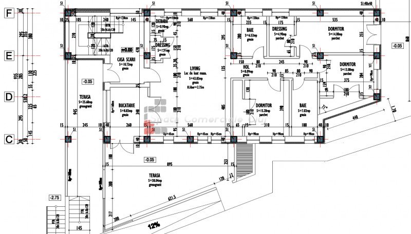
Birou situat intr-un imobil elegant, in zona Gradinii Botanice. Are suprafata utila de 120 mp si fiind situat la parter, dispune de o terasa acoperita, si de o gradina proprie. Acestui spatiu ii sunt alocate 4 locuri de parcare, din care unul la subsolul cladirii, iar celelalte 3 in curte. Exista posibilitatea achizitionarii mobilierului existent care apartine chiriasilor.