
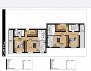
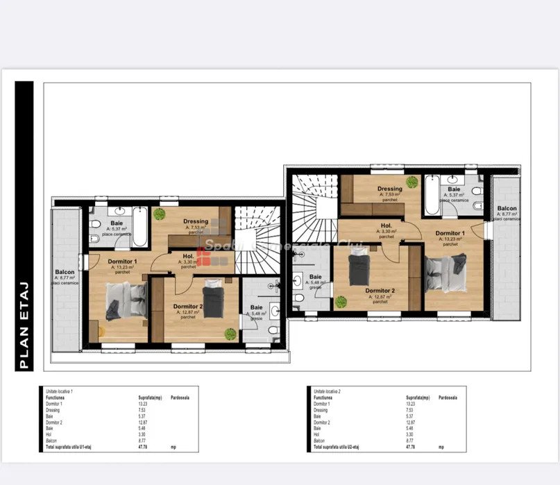
Esti in cautarea unui proprietati aflata intr-o zona plina de liniste si intimitate, pe care sa o poti numi acasa? Spatii Comerciale Cluj va aduce in atentie posibilitatea achizitionarii unui duplex, situat in zona Tauti, Floresti. Casa are un regim de inaltime D+P+1E, o suprafata utila de 150 mp si un teren de 350 m.p., compartimentarea fiind dupa cum urmeaza: -La demisol: garaj dublu, 2 locuri de parcare, camera tehnica, spatiu de depozitare, casa scarii; -La parter: bucatarie cu living open space si ieșire pe terasa in spate, 1 baie, 1 dormitor/ birou, hol, casa scarii; -La etaj: 2 dormitoare matrimoniale fiecare cu baie proprie, 1 dressing mare, hol, 1 balcon. Casa se preda la stadiul de semifinisat cu urmatoarele specificatii: •pereți gletuiți, instalații sanitare si electrice la poziție, centrala termică cu incalzire prin pardoseala, erestre termoizolante, usa intrare si geamuri termopan; •curte amenajata cu pavaj si imprejmuita cu gard si porti. Pentru mai multe detalii si stabilirea unei vizionari, va rugam sa ne contactati cu incredere! ID Proprietate: P-39125