, 119m2 in Floresti

Pret:
ID: P46737
Ma intereseaza oferta Adauga la Favorite
Caracteristici
Tip imobil:
Suprafata utila:
119 m2
Nr. incaperi:
--
Bai:
--
Nr. parcari:
--
Nr. garaje:
--
Denumire imobil:
--
Etaj:
Constructie din:
--
Anul constructiei:
--
Suprafata construita:
--
Suprafata teren:
--
Suprafata curte:
--
Alte detalii zona

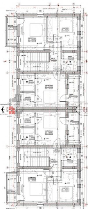
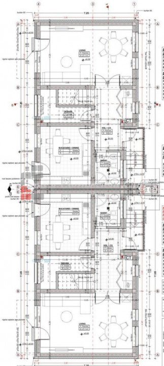
Spatii Comerciale Cluj va propune pentru de vanzare o casa tip duplex cu 4 camere, situata optim in Floresti. Casa este pe 2 nivele, P + M, are o suprafata utila de 119 mp si este compartimentata dupa cum urmeaza: Parter: -living -bucatarie -baie -hol -debara Etaj: -3 dormitoare(unul din dormitoare este cu baie proprie si dressing) -2 bai -hol -logie -balcon Suprafata utila este de 119,5mp. Intrarea pe proprietate se face pe un drum privat de 6m latime+trotuar de 1,2m latime. Finalizarea proiectului se va face in luna Iulie 2026. Casa se vinde la stadiul de semifinisat Pentru alte detalii sau o oferta personalizata, va stam la dispozitie. P46737

Contact agentie

Formular de contact

Nume:
Telefon:
Email:
Mesaj: