, 53.1m2 in Floresti

Pret:
ID: P46852
Ma intereseaza oferta Adauga la Favorite
Caracteristici
Tip imobil:
Suprafata utila:
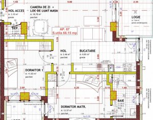
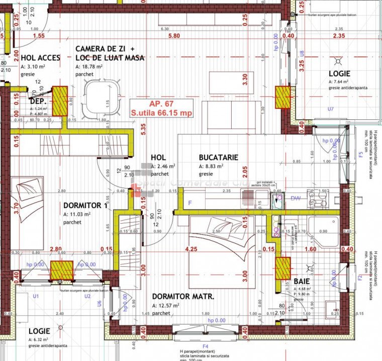
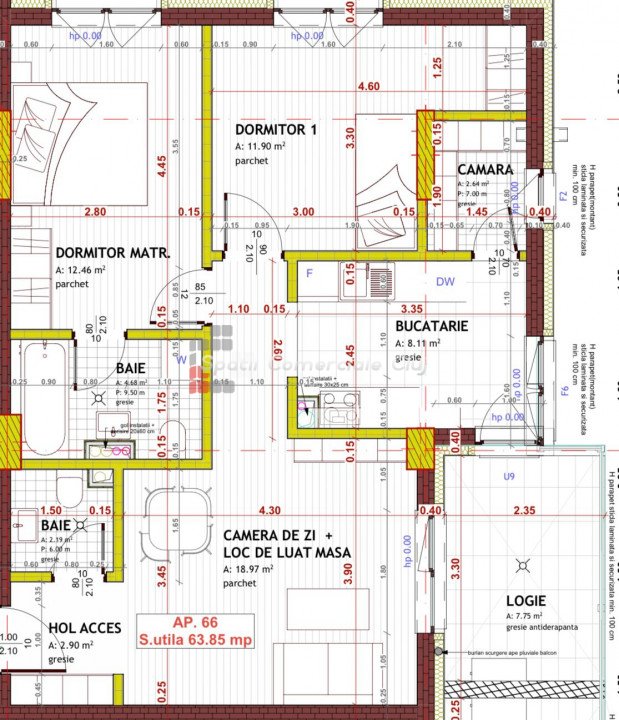
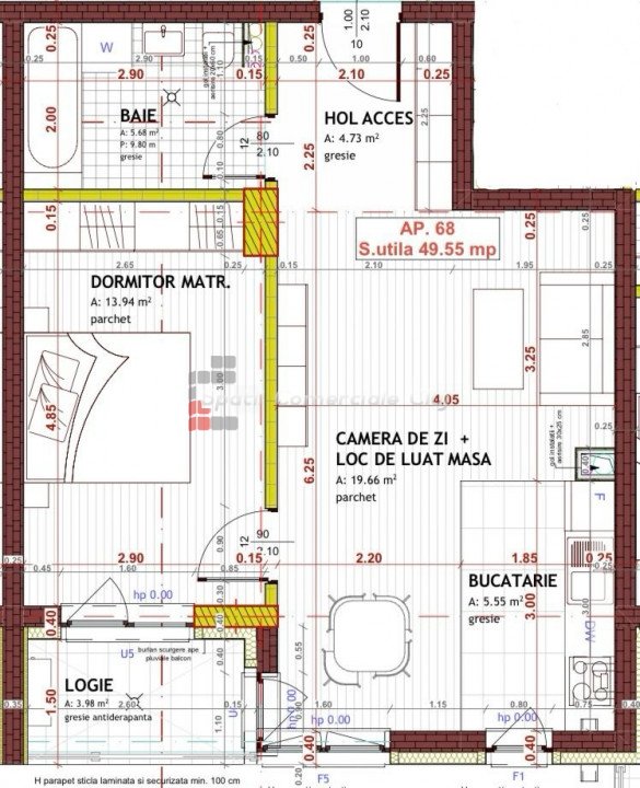
53.1 m2
Nr. incaperi:
--
Bai:
--
Nr. parcari:
--
Nr. garaje:
--
Denumire imobil:
--
Etaj:
Constructie din:
--
Anul constructiei:
--
Suprafata construita:
--
Suprafata teren:
--
Suprafata curte:
--
Alte detalii zona

Va propunem un nou proiect imobiliar situat in cea mai accesibila zona a Florestiului, pe strada Tineretului, in apropierea Somesului. Proiectul este compus din 4 imobile, cu un regim de inaltime de S+P+6E prevazut cu spatii comerciale la parter, spatii verzi, alei pietonale. Blocurile sunt din caramida si sunt prevazute cu centrala termica individuala pe fiecare apartament, incalzire in pardoseala, geamuri tripan, usa antiefractie, lift. Apartamentele se predau la stadiul finisat ce include: gresie, faianta, parchet, usi interioare, obiecte sanitare in baie, prize, intrerupatoare si corpuri de iluminat. Preturile afisate includ TVA. Contra cost, se poate opta pentru parcare subterana. Termen de finalizare: Decembrie 2025

Contact agentie

Formular de contact

Nume:
Telefon:
Email:
Mesaj: