Oferte favorite

Inchide

, 153m2 in Cluj-napoca, zona Grigorescu

Pret:
ID: P48927
Ma intereseaza oferta Adauga la Favorite
Caracteristici
Tip imobil:
Suprafata utila:
153 m2
Nr. incaperi:
--
Bai:
--
Nr. parcari:
--
Nr. garaje:
--
Denumire imobil:
--
Etaj:
Constructie din:
--
Anul constructiei:
--
Suprafata construita:
--
Suprafata teren:
--
Suprafata curte:
--
Alte detalii zona

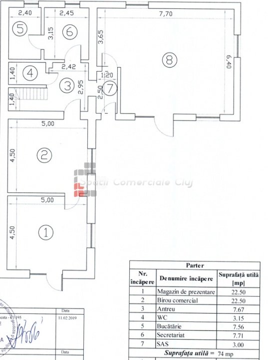
Va propunem spre vânzare o clădire cu destinație comercială și de birouri, situată în cartierul Grigorescu, într-o zonă cu vad foarte bun, în imediata apropiere a stației de autobuz, cu acces facil și vizibilitate excelentă din stradă. Imobilul este dispus pe două niveluri (parter și mansardă) și are o suprafață construită desfășurată de 253 mp, respectiv o suprafață utilă de 153 mp. Este ideal pentru activități de birou, servicii sau cabinete și reprezintă o oportunitate excelentă de investiție, fiind în prezent închiriat către chiriași stabili, cu randament imediat. Teren total: 299 mp Front stradal: 13,5 metri Compartimentare: Parter: 3 birouri, baie, antreu, scară interioară Mansardă: 2 birouri, hol, baie Construcția este solidă, realizată pe fundații din beton armat, cu zidărie din cărămidă și acoperiș tip terasă. Beneficiază de garaj auto și curte proprie, care poate fi utilizată pentru parcare, zonă de relaxare sau extindere. Caracteristici principale: Zonă cu vad comercial, trafic pietonal și rutier intens Acces imediat la mijloacele de transport în comun Spațiu luminos, bine întreținut Proprietate închiriată, cu venit pasiv garantat Posibilitate de parcare în curte Acces auto facil Dotări și utilități: Centrală termică proprie Contorizare individuală Utilități complete Posibilitate de recompartimentare și personalizare Pentru informații suplimentare sau pentru programarea unei vizionări, vă invităm să ne contactați. Această proprietate oferă combinația perfectă între amplasare, funcționalitate și potențial investițional.

Contact agentie

Formular de contact

Nume:
Telefon:
Email:
Mesaj:

Oferte similare

  • , 190m2 in Cluj-napoca, zona Marasti

    , 190m2 in Cluj-napoca, zona Marasti

    OPORTUNITATE INVESTITIE | Casa ideala pentru inchiriere, birouri sau Airbnb | Zona Parcul Feroviarilor – Mall Rivus ...

    » 5 camere, 2 bai, 190 m2, teren 205 m2
  • , 112m2 in Cluj-napoca

    , 112m2 in Cluj-napoca

    Oferim spre vânzare casa cu grădină proprie generoasă, situata in zona semicentrală a oraÈ™ului. Casa este compusÄ...

    » 2 camere, 1 baie, 112 m2, teren 342 m2
  • , 153m2 in Cluj-napoca, zona Grigorescu

    , 153m2 in Cluj-napoca, zona Grigorescu

    Va propunem spre vânzare o clădire cu destinație comercială și de birouri, situată în cartierul Grigorescu, într...

    » 5 camere, 2 bai, 153 m2, teren 299 m2
  • , 150m2 in Cluj-napoca, zona Dambul Rotund

    , 150m2 in Cluj-napoca, zona Dambul Rotund

    Vanzare casa individuala situata in Dambul Rotund pe versantul cu expunere sudica, zona str. Breaza - Str. Piersicului ...

    » 5 camere, 2 bai, 150 m2, teren 626 m2
  • , 257m2 in Cluj-napoca, zona Someseni

    , 257m2 in Cluj-napoca, zona Someseni

    Spatii Comerciale Cluj va propune pentru de vanzare o casa cu 4 camere, situata optim in cartierul Someseni. Casa es...

    » 4 camere, 257 m2, teren 311 m2
  • , 200m2 in Cluj-napoca, zona Iris

    , 200m2 in Cluj-napoca, zona Iris

    Oportunitate ideală pentru cei care își doresc o locuință modernă și spațioasă, într-o zonă liniștită, cu o...

    » 6 camere, 3 bai, 200 m2, teren 250 m2