
Amenajare strazi (Asfaltate), Iluminat stradal, Mijloace de transport in comun
Vecinatati: WINGS Frunzisului
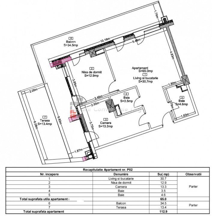
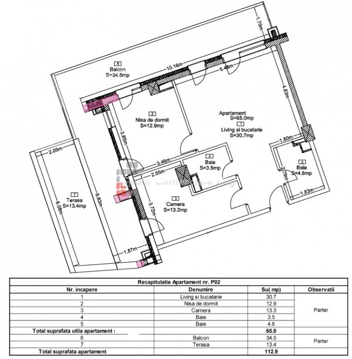
Oferim spre vânzare un apartament modern situat în ansamblul rezidențial Wings, cartier Zorilor, Cluj-Napoca. Proiectul este unul dintre cele mai apreciate din oraș, remarcat pentru designul arhitectural deosebit, materialele de calitate superioară și confortul oferit locatarilor Apartament 3 camere 65mp utili, 1 dormitor + nisa sau birou, 2 bai, living si bucatarie open space. Terasa 13.4mp si balcon 34.5mp. SEMIFINISAT Pret total apartament 206.000 euro Intabulat cu carte funciară – disponibil imediat, se poate accesa credit ipotecar Posibilitate achiziție loc de parcare: 15.000 EUR