
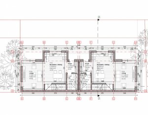
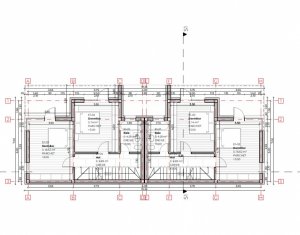
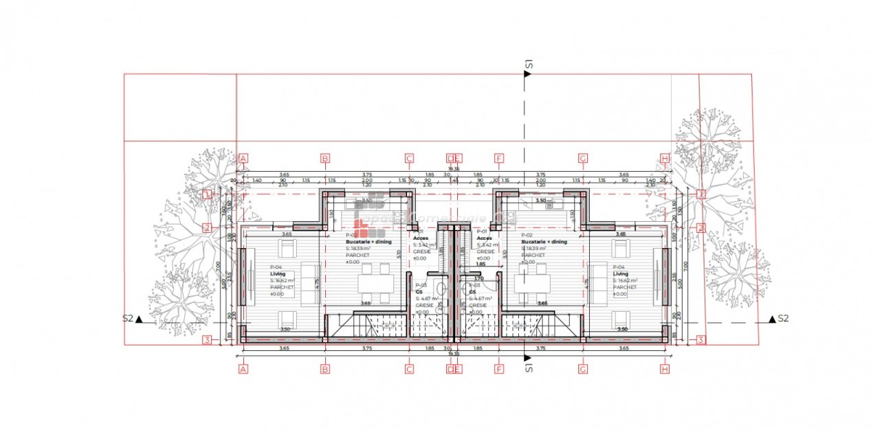
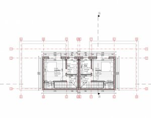
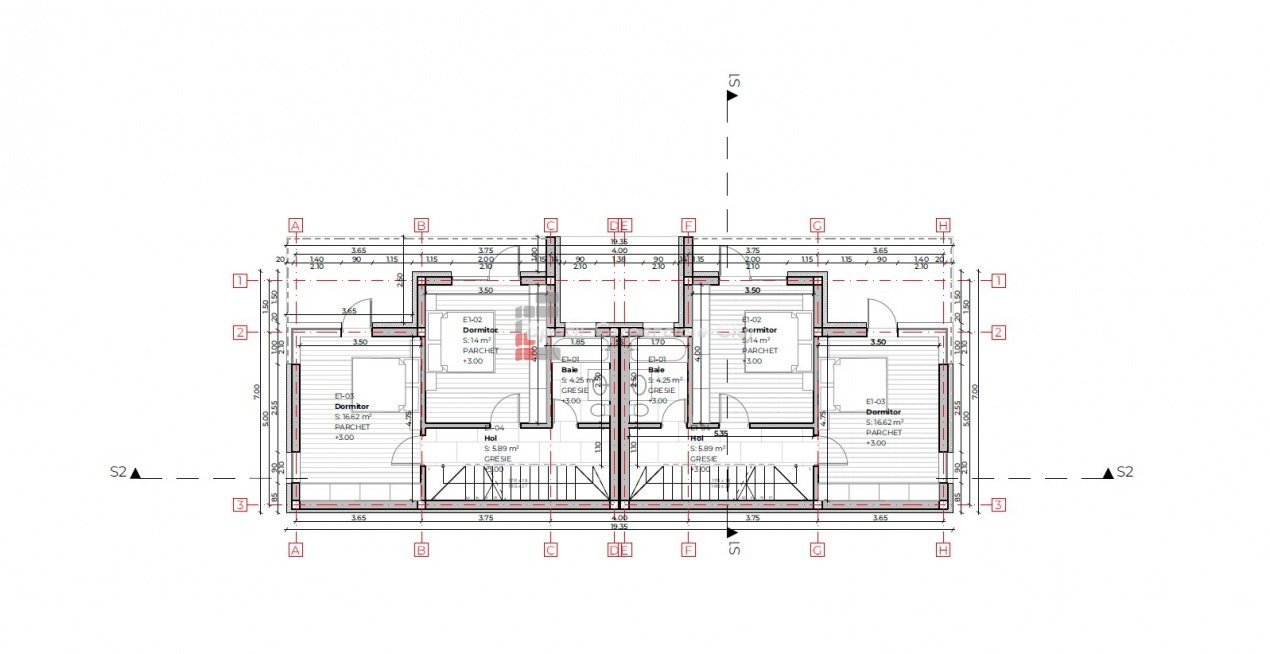
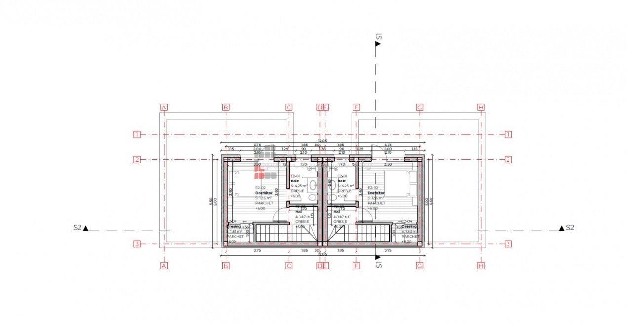
Va propunem spre achizitie un duplex modern, aflat in curs de edificare, situat intr-o zona rezidentiala exclusivista si linistita a cartierului Buna Ziua, zona strazii Macesului. Detine o suprafata utila: 110 mp, regimul de inaltime: Parter + Etaj + Etaj retras (P+E+Er), fiind compartimentat astfel: Parter: -Hol de acces; -Baie de serviciu; -Bucatarie open-space cu zona de dining; -Living generos, ideal pentru relaxare; Etaj: -2 dormitoare spatioase; -Hol de distributie; -Baie completa; Etaj retras: -Dormitor matrimonial cu baie proprie si dressing Se preda semifinisat la interior: -Instalatii electrice, termice si sanitare realizate si pozitionate -Incalzire in pardoseala -Pereti gletuiti, sape autonivelante -Tamplarie PVC cu geam termopan -Exterior complet finisat Teren aferent 175 mp, curte individuala amenajata si delimitata. Pentru mai multe detalii asteptam sa ne contactati.