
Amenajare strazi (Pietruite), Iluminat stradal, Mijloace de transport in comun
Vecinatati: HUB Educational Borhanci, CTP
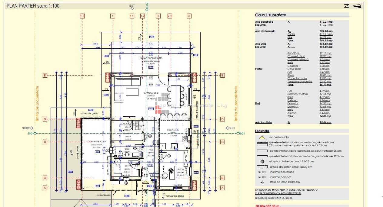
Spatii Comerciale Cluj intermediaza vanzarea unei case individuale, situata optim in cartierul Sopor, pe o strada linistita, cu o panorama deosebita, asupra municipiului Cluj-Napoca. Casa este construita pe 2 niveluri: P+1E, compartimentarea fiind dupa cum urmeaza: - La parter : copertina auto, tip garaj, camera tehnica, hol acces, casa scarii, living+ bucatarie open-space, cu iesire pe o terasa exterioara, dinning, 1 camara, 1 birou, 1 baie; - La etaj: 1 dormitor matrimonial cu baie proprie, 1 balcon si dreesing, respectiv inca 2 dormitoare si 1 baie; Casa se vinde la stadiul semifinisat la interior, cu toate utilitatile: apa, gaz, curent trifazic(cu infrastructura pentru incarcare electrica auto), fosa septica cu microstatie de epurare, bazin de colectare a apelor pluviale, gata la exterior cu termoizolatie respectand standardul NZEB, curte cu alei pavate, garduri si porti finalizate. Zona este una rezidențiala liniștita, cu acces facil catre oras. In apropiere se afla HUB-ul Educational Borhanci, prevazut cu bazin olimpic, cresa, gradinita, scoala generala si liceu, precum si un parc; Pentru o vizionare nu ezitati sa ne contactati! Echipa Spatii Comerciale Cluj. ID Proprietate: P 50247