
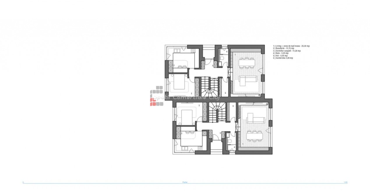
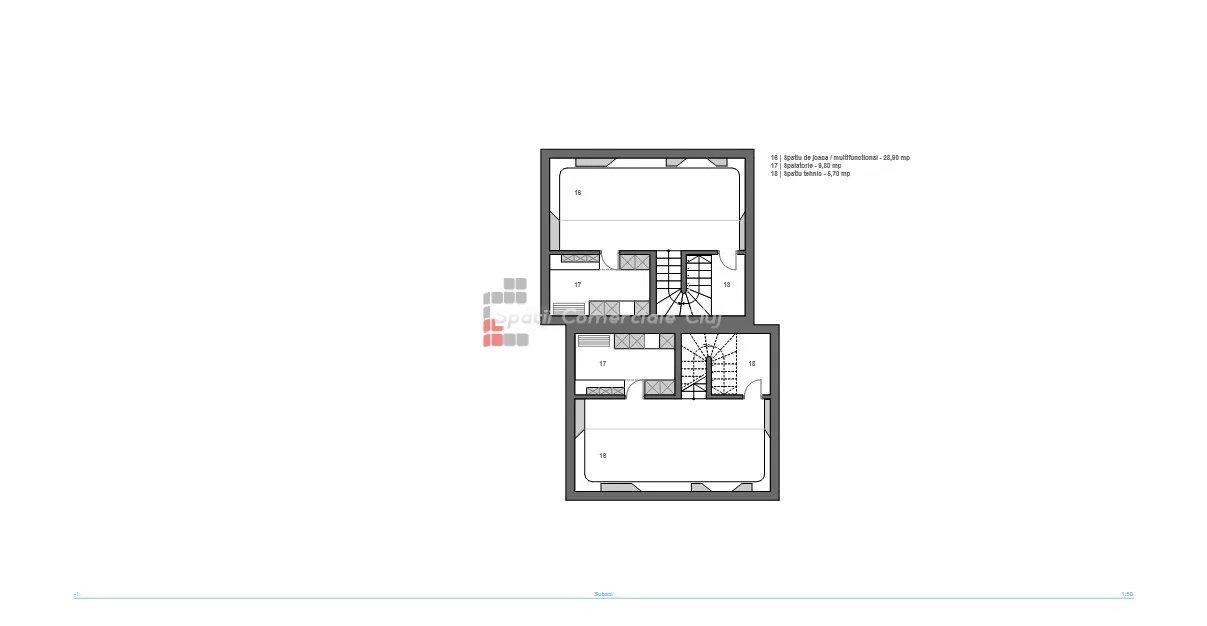
Pentru ca esti obisnuit sa traiesti la superlativ, ti-am gasit caminul ideal, astazi, in 10 a 10-a 2025, la doar 10 km de centrul Clujului . Desigur, asa cum era de asteptat, la constructia acestor doua unitati de duplex s-au folosit materiale de nota 10 pe care le-au organizat, ai ghicit, mesteri cu aceeasi nota la care adaugam si un +. Iar daca iti doresti sa locuiesti aproape de cei dragi – parinti, frati sau prieteni – dar sa aveti in acelasi timp intimitate si confort, aceste doua unitati de duplex din Dezmir pot fi alegerea perfecta. Unitatea 1 – 180 mp utili + subsol 50 mp - suprafata utila: 180 mp - subsol: 50 mp (spatiu tehnic, spalatorie/uscator, zona hobby/depozitare) - parter: living de 30 mp cu iesire spre terasa, bucatarie separata, dormitor/birou, baie si spatiu de depozitare - etaj: 2 dormitoare cu baie comuna + dormitor matrimonial cu baie proprie - 2 locuri de parcare amenajate Pret: 255.000 euro + TVA Unitatea 2 – 180 mp utili + subsol 50 mp + mansarda 76 mp - suprafata utila: 180 mp - subsol: 50 mp (spatiu tehnic, spalatorie/uscator, zona hobby/depozitare) - parter: living de 30 mp cu iesire spre terasa, bucatarie separata, dormitor/birou, baie si spatiu de depozitare - etaj: 2 dormitoare cu baie comuna + dormitor matrimonial cu baie proprie - mansarda: open-space + baie - 3 locuri de parcare amenajate Pret: 306.000 euro + TVA Caracteristici comune pentru ambele unitati - teren: 300 mp / unitate - constructie din caramida, izolatie exterioara Sto Premium 15 cm (coeficient termic 0,36) - tencuiala Baumit, fatada ventilata cu tencuiala decorativa Sto si caramida aparenta - incalzire in pardoseala cu comanda separata in fiecare incapere - instalatie electrica trifazica, pregatita pentru panouri solare si statie incarcare auto - baterie 5kw pentru panouri solare - centrala termica 28 kw - sistem de colectare a apei pluviale (rezervor 3000 l + pompa) - ferestre Salamander – 7 camere, 3 foi de sticla - pod izolat cu vata bazaltica 15 cm - porti actionate electric, pergola acoperita si foișor amenajat in curte - zid comun cu rost de dilatare si izolatie fonica (polistiren 20 cm) Termen de finalizare: decembrie 2025 Vanzare de pe persoana juridica – preturile nu includ TVA.