
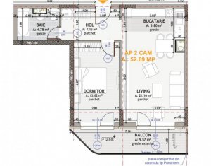
Spatii Comerciale Cluj va propune spre achizitie un apartament semidecomandat situat in Baciu, in zona strazii Viilor. Acesta are o suprafata utila 48 mp, este situat intr-un bloc tip vila format din 8 apartamente. Blocul a fost gandit astfel: Demisol + parter + etaj 1 + mansarda. Compartimentare: -> Bucatarie; -> Baie; -> Living; -> Dormitor; Apartamentul se vinde conform pozelor de prezentare. Modalitatile de plata sunt diverse iar pretul este usor negociabil. Separat se poate achizitiona si un loc de parcare in interior la pretul de 8000E negociabil. Pentru orice detalii sau vizionari va rugam sa ne contactati cu incredere. ID Proprietate: P50974