, 65.5m2 in Cluj-napoca, zona Zorilor

Pret:
ID: P51919
Ma intereseaza oferta Adauga la Favorite
Caracteristici
Tip imobil:
Suprafata utila:
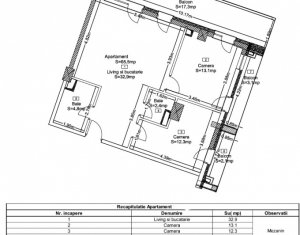
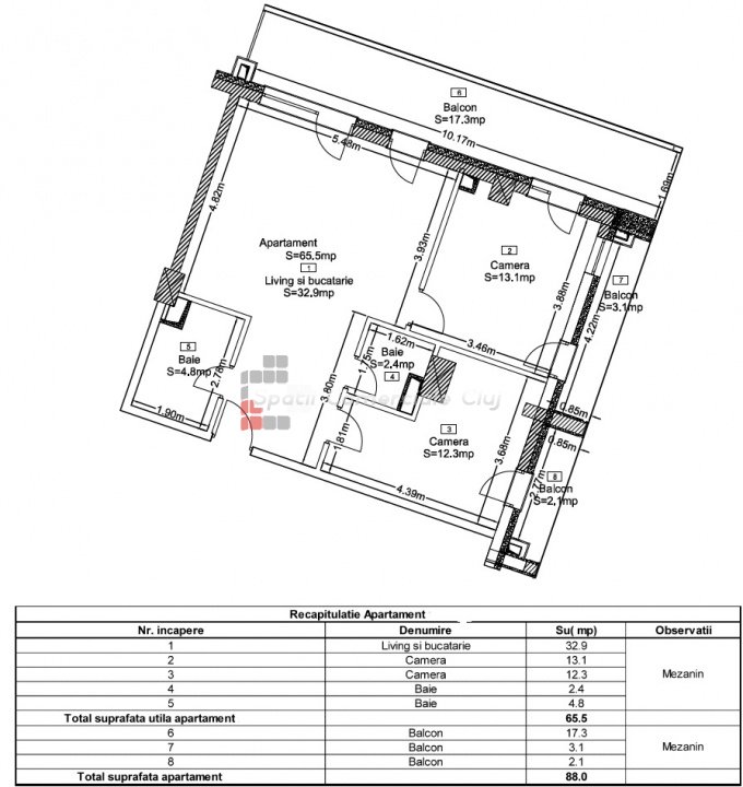
65.5 m2
Nr. incaperi:
--
Bai:
--
Nr. parcari:
--
Nr. garaje:
--
Denumire imobil:
--
Etaj:
Constructie din:
--
Anul constructiei:
--
Suprafata construita:
--
Suprafata teren:
--
Suprafata curte:
--
Alte detalii zona

Amenajare strazi (Asfaltate), Iluminat stradal, Mijloace de transport in comun

Vecinatati: WINGS Frunzisului

Alte detalii zona

Oferim spre vânzare un apartament modern situat în ansamblul rezidențial Wings, cartier Zorilor, Cluj-Napoca. Proiectul este unul dintre cele mai apreciate din oraș, remarcat pentru designul arhitectural deosebit, materialele de calitate superioară și confortul oferit locatarilor Apartament 3 camere 65,5mp utili, 1 dormitor + nisa sau birou, 2 bai, living si bucatarie open space. Terasa 22mp, SEMIFINISAT, orientare Sud-Est Pret total apartament 196.300 euro Intabulat cu carte funciară – disponibil imediat, se poate accesa credit ipotecar Posibilitate achiziție loc de parcare: 15.000 EUR

Contact agentie

Formular de contact

Nume:
Telefon:
Email:
Mesaj:

Oferte similare

  • , 73.29m2 in Cluj-napoca, zona Marasti

    , 73.29m2 in Cluj-napoca, zona Marasti

    Spatii Comerciale Cluj va recomanda locuinte de vanzare in curs de dezvoltare. Complexul cuprinde atat locuinte cat si s...

    » 3 camere, 1 bucatarie, 2 bai, 73.29 m2
  • , 63m2 in Cluj-napoca, zona Iris

    , 63m2 in Cluj-napoca, zona Iris

    Va Propunem un Apartament cu 3 camere de vanzare, 63 m², zona Iris, Cluj-Napoca. Localizarea imobilului unde este ap...

    » 3 camere, 1 bucatarie, 2 bai, 63 m2
  • , 65.5m2 in Cluj-napoca, zona Zorilor

    , 65.5m2 in Cluj-napoca, zona Zorilor

    Oferim spre vânzare un apartament modern situat în ansamblul rezidențial Wings, cartier Zorilor, Cluj-Napoca. Proiect...

    » 3 camere, 1 bucatarie, 2 bai, 65.5 m2
  • , 90.23m2 in Cluj-napoca, zona Marasti

    , 90.23m2 in Cluj-napoca, zona Marasti

    Spatii Comerciale Cluj are placerea sa va ofere spre vanzare un apartament cu 3 camere, semifinisat, situat in Marasti. ...

    » 3 camere, 1 bucatarie, 2 bai, 90.23 m2
  • , 65.4m2 in Cluj-napoca, zona Manastur

    , 65.4m2 in Cluj-napoca, zona Manastur

    Spatii Comerciale Cluj vă propune spre vânzare un apartament cu 3 camere, situat in cartierul Manastur. Situat intr-o ...

    » 3 camere, 1 bucatarie, 1 baie, 65.4 m2
  • , 73.29m2 in Cluj-napoca, zona Marasti

    , 73.29m2 in Cluj-napoca, zona Marasti

    Spatii Comerciale Cluj va recomanda locuinte de vanzare in curs de dezvoltare. Complexul cuprinde atat locuinte cat s...

    » 3 camere, 1 bucatarie, 2 bai, 73.29 m2