, 876m2 in Chinteni

Pret:
ID: P53711
Ma intereseaza oferta Adauga la Favorite
Caracteristici
Tip imobil:
Suprafata utila:
876 m2
Nr. incaperi:
--
Bai:
--
Nr. parcari:
--
Nr. garaje:
--
Denumire imobil:
--
Etaj:
Constructie din:
--
Anul constructiei:
--
Suprafata construita:
--
Suprafata teren:
--
Suprafata curte:
--
Alte detalii zona

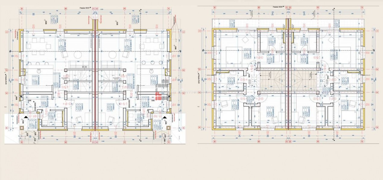
Spatii Comerciale Cluj intermediaza vanzarea a doua parcele de teren intravilan situate in comuna Chinteni, judetul Cluj, fiecare cu cu suprafata de 876 mp, amplasate intr-o zona in plina dezvoltare rezidentiala, la doar aproximativ 15-16 km de municipiul Cluj-Napoca, una dintre cele mai dinamice piete imobiliare din Romania. Fiecare parcela beneficiaza de Autorizatie de Construire pentru duplex – 2 locuinte cuplate unifamiliale P+E, impreuna cu Proiect Tehnic complet (PTH), ceea ce permite inceperea rapida a lucrarilor de constructie, fara etape suplimentare de autorizare. Indicatori constructie: - Suprafata construita: 169.76 mp; - Suprafata desfasurata: 339.52 mp; - Suprafata utila totala: 235.10 mp. Dimensiuni teren: - Deschidere la strada: 24 m; - Adancime: 37 m. Accesul se face pe strada publica neasfaltata, iar utilitatile (apa si electricitate) sunt disponibile la intrarea pe strada. Comuna Chinteni este una dintre localitatile din zona metropolitana a Clujului care a cunoscut o dezvoltare accelerata in ultimii ani, fiind preferata de familiile tinere care doresc sa locuiasca aproape de oras, dar intr-un mediu mai linistit si mai verde. Localitatea se afla la aproximativ 16 km de Cluj-Napoca si include mai multe sate componente, fiind caracterizata prin zone naturale, lacuri si spatii verzi. Un factor major de crestere a atractivitatii zonei il reprezinta proiectul Aquapark Chinteni, o investitie estimata la aproximativ 25 milioane de euro, care se va intinde pe aproximativ 10 hectare si va include bazine interioare si exterioare, tobogane, zone de relaxare si facilitati de agrement. Complexul ar putea atrage pana la 2.500 de vizitatori zilnic, contribuind semnificativ la dezvoltarea economica si turistica a zonei. In apropiere se afla si Lacul Chinteni, o zona naturala de agrement cu aproximativ 18 hectare de luciu de apa, cunoscuta pentru pescuit sportiv si activitati recreative, ceea ce face ca zona sa fie atractiva atat pentru locuire, cat si pentru investitii imobiliare. Datorita pozitiei apropiate de Cluj-Napoca, a dezvoltarii infrastructurii si a proiectelor majore planificate in zona, proprietatea reprezinta o oportunitate foarte buna pentru investitori sau dezvoltatori imobiliari care doresc sa realizeze rapid un proiect rezidential intr-o zona cu potential ridicat de crestere. Terenul se vinde de pe firma. Pret: 90.000 Euro + TVA

Contact agentie

Formular de contact

Nume:
Telefon:
Email:
Mesaj: