Oferte favorite

Inchide

Aceasta oferta NU mai este disponibila.
Contactati agentul pentru o oferta personalizata, sau vizitati ofertele similare. Vezi Oferte Similare

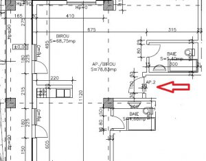
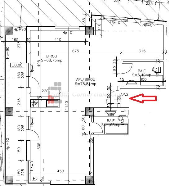
Birou de vanzare, 78.83m2 in Cluj-napoca, zona Zorilor

Pret:
ID: P15880
Ma intereseaza oferta Adauga la Favorite
Caracteristici
Tip imobil:
bloc
Suprafata utila:
78.83 m2
Nr. incaperi:
1
Bai:
2
Terase:
--
Nr. parcari:
--
Nr. garaje:
--
Denumire imobil:
--
Clasa birouri:
B
Etaj:
parter/4
Regim de inaltime:
4E
Constructie din:
Caramida
Anul constructiei:
2019
Suprafata construita:
85 m2
Suprafata terase:
--
Suprafata teren:
--
Suprafata curte:
--
Utilitati

Utilitati generale: Electricitate, Apa, Gaz, Canalizare

Sistem de incalzire: Centrala termica, Calorifere

Climatizare: Aer conditionat

Finisaje:Izolatii termice (Exterior), Stare interior (Necesita renovare), Ferestre cu geam termopan (PVC), Iluminat (Lampi, Spoturi, Aplice, Exterior cladire, Lumina naturala)

Dotari: Contorizare (Apometre, Contor gaz), Dotari imobil (Interfon, Videointerfon, Lift, Curte, Gradina), CFR, Spatiu verde amenajat

Alte detalii zona

Va propun spre vanzare un spatiu de birou, situat la parterul unui imobil nou de pe Calea Turzii din zona OMV, pentru sediu de firma, activitati medicale sau beauty center. Predarea se face la stadiul de semifinisat, incluzand sape, pereti tencuiti si gletuiti, toate instalatiile pe pozitie, centrala proprie. Exista multiple posibilitati de utilizare comerciala sau profesie liberala, CF Comercial. Este compus dintr-o sala open space de 69 mp si doua grupuri sanitare. Locuri de parcare exterioare la 3500€. Locuri de parcare subterane la 5000€.

Contact agentie

Formular de contact

Nume:
Telefon:
Email:
Mesaj: