Oferte favorite

Inchide

Aceasta oferta NU mai este disponibila.
Contactati agentul pentru o oferta personalizata, sau vizitati ofertele similare. Vezi Oferte Similare

Spatiu comercial de vanzare, 627m2 in Cluj-napoca

Pret:
ID: P18883
Ma intereseaza oferta Adauga la Favorite
Caracteristici
Tip imobil:
bloc
Suprafata utila:
627 m2
Nr. incaperi:
8
Bai:
1
Terase:
--
Nr. parcari:
--
Nr. garaje:
--
Denumire imobil:
--
Etaj:
mansarda/3
Regim de inaltime:
3E
Constructie din:
Caramida
Anul constructiei:
2018
Suprafata construita:
689 m2
Suprafata terase:
--
Suprafata teren:
--
Suprafata curte:
--
Utilitati

Utilitati generale: Electricitate, Apa, Gaz, Canalizare

Finisaje:Izolatii termice (Exterior), Ferestre cu geam termopan (PVC)

Dotari: Dotari imobil (Interfon, Lift, Curte), CFR

Alte detalii zona

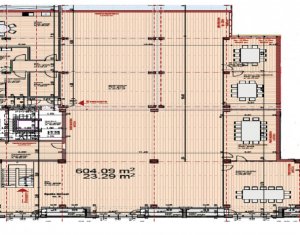
Spatii Comerciale Cluj va ofera spre vanzare spatii comerciale , situate intr-un imobil nou, aflat in constructie in zona Cluj Arena. Spatiile se vor preda in luna decembrie 2018, la stadiul semifinisat, cu centrala proprie si calorifere. Constructorul imobilului este unul cu experienta, avand la activ deja un numar de 12 imobile finalizate. Spatiile sunt compuse din zona de birouri open space, cu sala de sedinte una sau mai multe in functie de marimea spatiului , grup sanitar , si zona de hobby/recreere. Spatiul cuprinde o sala mare de tip open space cu 3 logii plus 4 sali de sedinte, un grup sanitar, o camera server si oficiu. Pentru detalii si vizionarea locatiei, va rugam sa ne contactati.

Contact agentie

Formular de contact

Nume:
Telefon:
Email:
Mesaj: