
Utilitati generale: Electricitate, Apa, Gaz, Canalizare
Sistem de incalzire: Centrala termica, Calorifere
Finisaje:Izolatii termice (Exterior), Podele (Parchet, Gresie), Stare interior (Buna), Ferestre cu geam termopan (PVC), Iluminat (Lampi, Spoturi, Aplice, Exterior cladire, Lumina naturala)
Dotari: Contorizare (Apometre, Contor gaz), Dotari imobil (Interfon, Lift), CFR
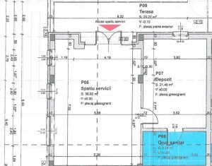
Va propun spre vanzare un spatiu comercial situat la o artera principala, la parterul unui imobil dat in folosinta in 2019, situat in zona magazinului Lidl din Baciu, cu vizibilitate foarte buna din ambele sensuri ale drumului european. Suprafata utila de 110mp dispusi in sala de vanzare spatioasa si o incapere separata unde poate fi un birou si/sau chicineta + grup sanitar. Teren exterior in proprietate de 190mp unde sunt amenajate 7 locuri de parcare. 80mp loc de depozitare la subsol in garaj. Intrare principala in spatiu se face din strada si secundara din casa scarii. Se vinde cu preluare de chiriasi cu un venit de 12.000 euro/an. Vanzare sub regim TVA.