Aceasta oferta NU mai este disponibila.
Contactati agentul pentru o oferta personalizata, sau vizitati ofertele similare. Vezi Oferte Similare

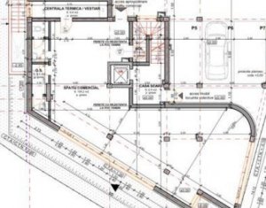
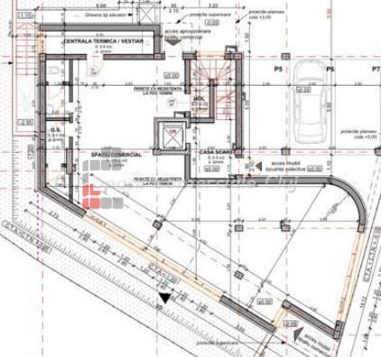
Spatiu comercial de vanzare, 120m2 in Cluj-napoca, zona Plopilor

Pret:
ID: P19547
Ma intereseaza oferta Adauga la Favorite
Caracteristici
Tip imobil:
bloc
Suprafata utila:
120 m2
Nr. incaperi:
1
Bai:
1
Terase:
--
Nr. parcari:
1
Nr. garaje:
--
Denumire imobil:
--
Etaj:
parter/2
Regim de inaltime:
D+P+2E
Constructie din:
Caramida
Anul constructiei:
2019
Suprafata construita:
130 m2
Suprafata terase:
--
Suprafata teren:
--
Suprafata curte:
--
Utilitati

Utilitati generale: Electricitate, Apa, Canalizare

Sistem de incalzire: Centrala termica

Finisaje:Izolatii termice (Exterior), Ferestre cu geam termopan (PVC), Iluminat (Exterior cladire, Lumina naturala)

Dotari: Contorizare (Apometre, Contor gaz)

Alte detalii zona

Pentru cei care sunt in cautare de spatiu cu urmatoarele criterii: - vitrina imensa la strada, - 120mp utili, cu doua intrari - parcare inclusa, - incalzire in pardoseala sau prin calorifere (la alegere) - locatie excelenta, aproape de mijloace de transport in comun, in proximitatea facultatii USMV. Pentru vizionari si detalii va stau la dispozitie.

Contact agentie

Formular de contact

Nume:
Telefon:
Email:
Mesaj: