Aceasta oferta NU mai este disponibila.
Contactati agentul pentru o oferta personalizata, sau vizitati ofertele similare. Vezi Oferte Similare

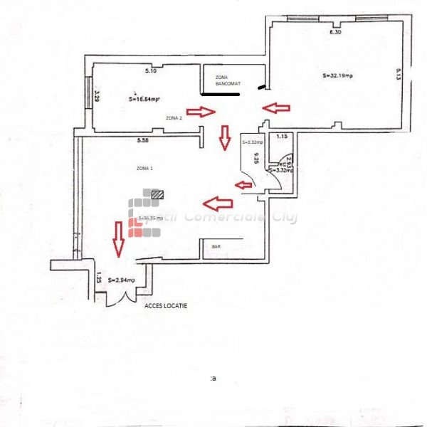
Spatiu comercial de vanzare, 115m2 in Cluj-napoca, zona Zorilor

Pret:
ID: P19791
Ma intereseaza oferta Adauga la Favorite
Caracteristici
Tip imobil:
bloc
Suprafata utila:
115 m2
Nr. incaperi:
3
Bai:
2
Terase:
--
Nr. parcari:
--
Nr. garaje:
--
Denumire imobil:
--
Etaj:
parter/4
Regim de inaltime:
4E
Constructie din:
Caramida
Anul constructiei:
--
Suprafata construita:
138 m2
Suprafata terase:
--
Suprafata teren:
--
Suprafata curte:
--
Utilitati

Utilitati generale: Electricitate, Curent trifazic, Apa, Gaz, Canalizare

Sistem de incalzire: Centrala termica

Climatizare: Aer conditionat

Finisaje:Izolatii termice (Interior), Podele (Mocheta), Ferestre cu geam termopan (PVC), Iluminat (Spoturi, Lumina naturala)

Dotari: Contorizare (Apometre, Contor gaz)

Alte detalii zona

Se vinde spatiu comercial de 115mp, spatiul este situat in piata Zorilor, zona foarte comerciala si intens circulata pietonal. Compus din 3 incaperi plus 1 grup sanitar, dispune de zona de aprovizionare cu rampa. Se preteaza perfect pentru orice tip de activitate comerciala sau medicala. Pentru detalii si vizionari va rog sa ma contactati.

Contact agentie

Formular de contact

Nume:
Telefon:
Email:
Mesaj: