
Utilitati generale: Electricitate, Curent trifazic, Apa, Gaz, Canalizare
Amenajare strazi (Asfaltate), Iluminat stradal
Vecinatati: parcul industrial Apahida, aeroportul international Cluj Napoca
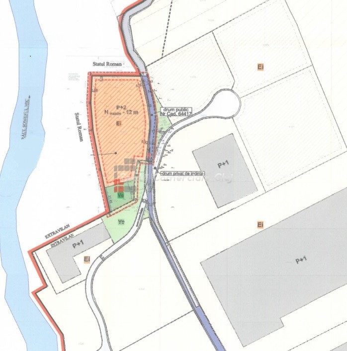
Va prezentam spre vanzare teren pentru constructii industriale, situat in Apahida, jud. Cluj in parcul industrial. Teren intravilan, intabulat cu CF si PUZ aprobat! POT 60%, CUT 1.5 Are front la drum public de 110m. Toate utilitatile sunt la front de parcela.