
Utilitati generale: Electricitate, Apa, Gaz, Canalizare, Cablu TV
Sistem de incalzire: Centrala termica
Finisaje:Izolatii termice (Exterior), Ferestre cu geam termopan (PVC)
Dotari: Contorizare (Apometre, Contor gaz), Dotari imobil (Curte)
Amenajare strazi (Asfaltate, Pietruite), Iluminat stradal, Mijloace de transport in comun
Vecinatati: zona de case
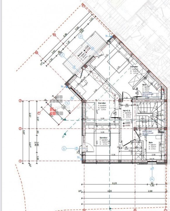
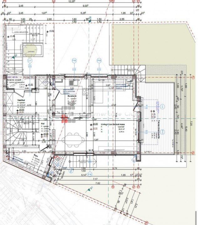
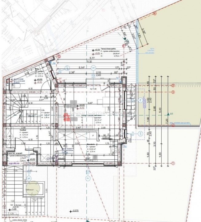
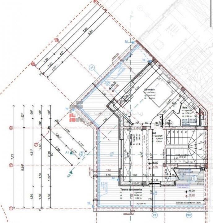
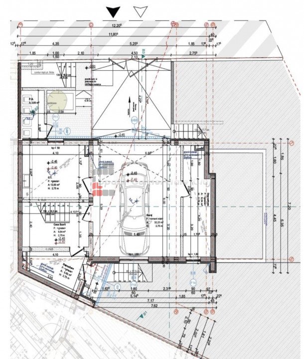
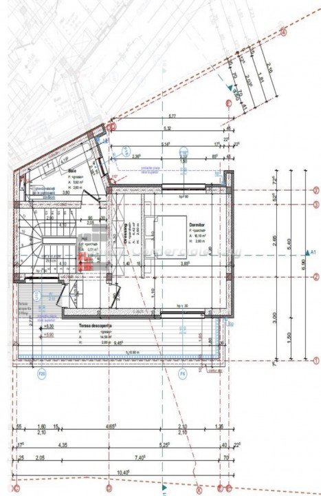
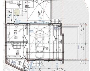
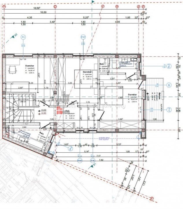
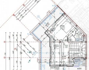
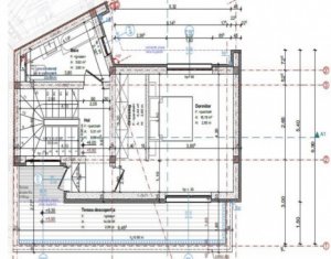
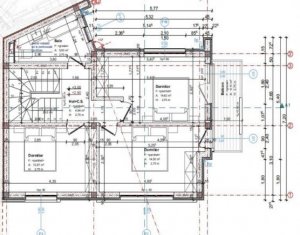
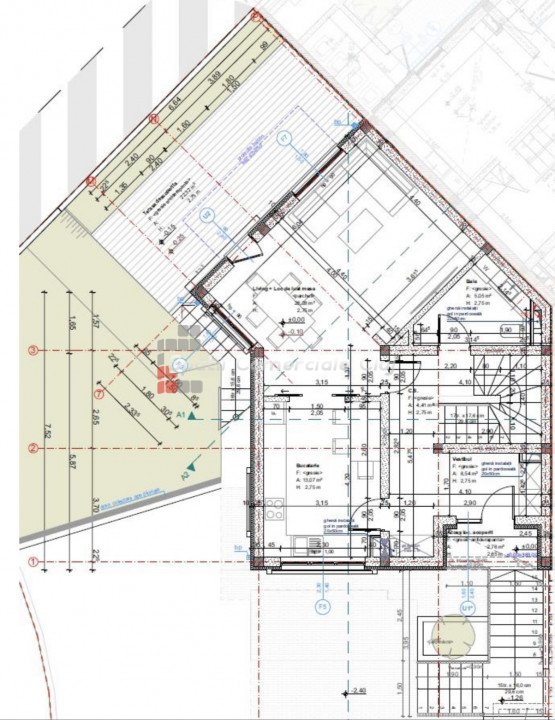
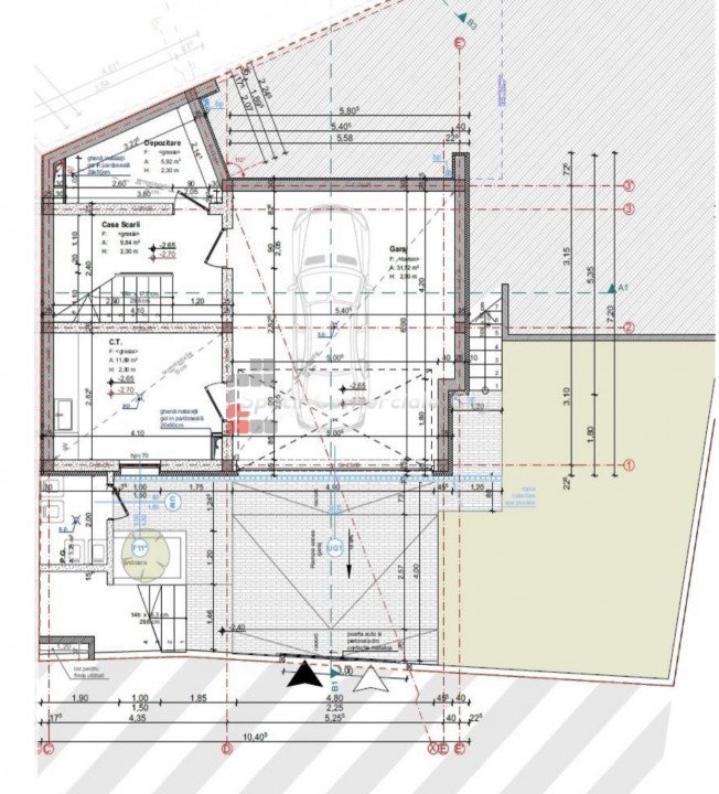
Va prezentam un imobil tip triplex, situat in Borhanci, intr-o zona linistita, retrasa de la aglomeratie. Acesta este compus din 3 unitati locative, fiecare cu carte funciara proprie si are urmatoarele caracteristici tehnice: - suprafata utila 601 mp; - regim de inaltime - D+P+E+Er; - suprafata teren 821 mp; - suprafata gradina libera 346 mp; - constructie cu materiale premium: zidarie de caramida Porotherm, polistiren de 15 cm, geamuri tamplarie Salamander cu 7 camere, intalatii termice Tece (incalzire in pardoseala), centrala in condensare, coloane de canalizare cu conducte fonoabsorbante - stadiu de predare interior - semifinisat iar exterior complet finisat - exista multimple posibilitati de recompartimentare/amenajare - termen de finalizare: Martie - Aprilie 2022. Modalitatile de plata sunt flexibile. Se accepta si credit bancar, incepand de la un avans minim de 10%.