
Utilitati generale: Electricitate, Apa, Gaz, Canalizare
Sistem de incalzire: Centrala termica
Finisaje:Izolatii termice (Exterior), Ferestre cu geam termopan (Aluminiu)
Dotari: Contorizare (Apometre, Contor gaz)
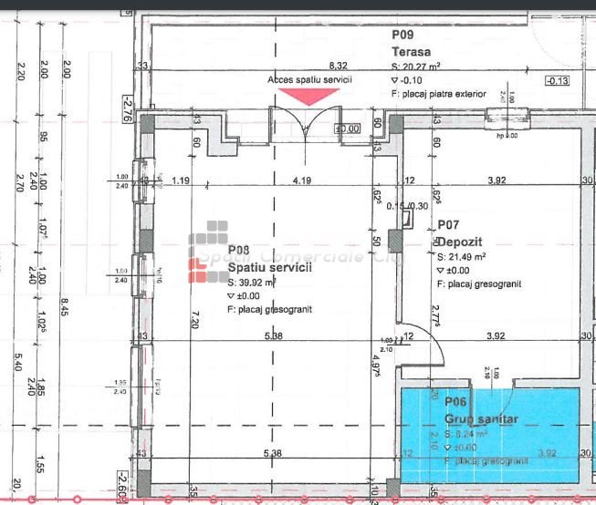
Spatiul este situat la parterul unei vile din cartierul Gruia si are acces pietonal separat din strada. Suprafata totala este de aproximativ 70mp utili, la care se mai adauga o terasa de 22mp. In partea dinspre strada avem zona de servicii in suprafata de 40mp, care poate fi compartimentata. In partea din spate avem zona de depozit si grupul sanitar. Spatiul se vinde semifinisat, cu centrala termica proprie si sistem de incalzire in pardoseala, tamplarie de aluminiu la geamuri, usi de acces si terasa amenajata. Se preteaza pentru activitati cu trafic redus de clienti si care nu necesita vad comercial.