
Utilitati generale: Electricitate, Apa, Gaz, Canalizare, Cablu TV
Sistem de incalzire: Centrala termica, Calorifere
Finisaje:Podele (Parchet, Gresie), Ferestre cu geam termopan (PVC), Iluminat (Lampi, Aplice)
Dotari: Contorizare (Nemobilat, Apometre, Contor gaz), Dotari imobil (Interfon, Curte comuna), Parcare proprie
Amenajare strazi (Asfaltate), Iluminat stradal, Mijloace de transport in comun
Vecinatati: Tribunalul Cluj, Platinia Dorobantilor, centrul orasului
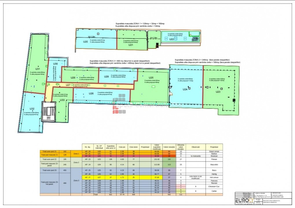
Avem placerea de a va oferi spre vanzare un apartament cu trei camere confort sporit, in suprafata de 83 de mp, situat pe Calea Dorobantilor, foarte aproape de Tribunal, Piata Avram Iancu, Platinia Dorobantilor, Liceul de Arte Romulus Ladea. Apartamentul este situat la etajul 1 al imobilului cu 1 etaj si acoperis. Dispune de centrala termica proprie. Este renovat recent si este izolat termic. Are parchet din lemn masiv, de calitate. In curtea interioara a imobilului veti avea parcare asigurata pentru 1 masina, plus un garaj. De asemenea noii proprietari vor avea in proprietate si lotul U29 din mansarda imobilului. Apartamentul se ofera pentru vanzare nemobilat. Avand in vedere ca este nedecomandat, cu intrare dintr-o incapere in alta (circuit) cea mai buna utilizare pentru acesta este aceea de birou. Poate fi vazut oricand cu o programare prealabila.