
Utilitati generale: Electricitate, Curent trifazic, Apa, Gaz, Canalizare, Cablu TV
Sistem de incalzire: Centrala termica
Finisaje:Izolatii termice (Exterior), Iluminat (Lampi, Lumina naturala)
Dotari: Contorizare (Nemobilat, Apometre, Contor gaz), Dotari imobil (Curte comuna)
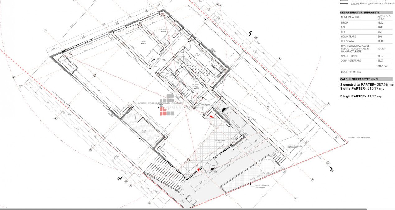
Vanzare spatiu comercial, imobil in curs de finalizare situat in zona hotel Athos, cartier Buna Ziua Imobilul cu destinatie comerciala si de servicii cu utilitate publica. Spatiul este situat la parter cu intrare din strada, avand o suprafata de 200mp utili, plus logii 11mp Inaltime utila a spatiului de 3m20, ideal si pentru activitati medicale, showroom, servicii. Expunere comerciala foarte buna, zona de trafic intens, vitrina si intrare din strada CF individual cu destinatie de "spatii servicii cu acces public profesionale si manufacturiere" Locuri de parcare in subsol contra cost