Oferte favorite

Inchide

Birou de vanzare, 127m2 in Cluj-napoca, zona Marasti

Pret:
ID: P45813
Ma intereseaza oferta Adauga la Favorite
Caracteristici
Tip imobil:
bloc
Suprafata utila:
127 m2
Nr. incaperi:
3
Bai:
1
Terase:
--
Nr. parcari:
--
Nr. garaje:
--
Denumire imobil:
--
Clasa birouri:
--
Etaj:
parter/6
Regim de inaltime:
D+P+6E
Constructie din:
Caramida
Anul constructiei:
2025
Suprafata construita:
135 m2
Suprafata terase:
--
Suprafata teren:
--
Suprafata curte:
--
Utilitati

Utilitati generale: Electricitate, Apa, Canalizare

Finisaje:Izolatii termice (Exterior), Stare interior (Necesita renovare)

Dotari: Contorizare (Nemobilat, Apometre, Contor caldura), Dotari imobil (Videointerfon, Lift, Curte comuna), CFR

Alte detalii zona

Amenajare strazi (Asfaltate), Iluminat stradal, Mijloace de transport in comun

Vecinatati: Kaufland Marasti, Hornbach, Facultatea de Mecanica,

Alte detalii zona

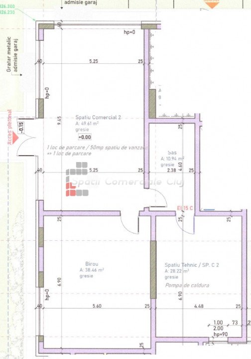
Spatii Comerciale Cluj va recomanda la vanzare un spatiu comercial sau de birouri intr-un proiect imobiliar deosebit, situat in cartierul Marasti - zona Bulgaria, la cateva minute de Kaufland sau Hornbach. Imobilul dispune de apartament de 1, 2 si 3 camere si 2 spatii comerciale, fiind predate finisate in iulie 2025. Spatiile comerciale se vor preda semifinisate, cu geamuri termopan tip vitrina, incalzire in pardoseala si centrala de imobil. Suprafeta utila a spatiului este de intre 127 mp utili fiind semicompartimentat in 3 insaperi mari si un sas/grup sanitar. Spatiul are prevazut un loc de parcare exterior acoperit, ce poate fi achizitionat separat. Daca se doreste garaj, pretul unui garaj subteran este de 15.000 euro fara TVA. Avansul minim este de 15% iar pentru avans mai mare de 50%, pretul se poate negocia usor. Pentru mai multe detalii sau vizionarea apartamentelor, nu ezitati sa ne contactati.

Contact agentie

Formular de contact

Nume:
Telefon:
Email:
Mesaj: