
Utilitati generale: Electricitate, Gaz, Canalizare
Sistem de incalzire: Centrala termica
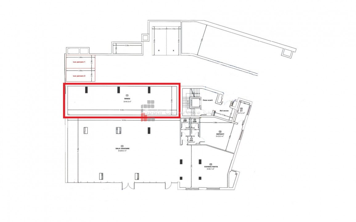
Spatii Comerciale Cluj va ofera spre vanzare un spatiu comercial cu destinatie pentru servicii profesionale in CF, oferind flexibilitate pentru diferite tipuri de afaceri cum ar fi birouri, saloane de beauty, showroom-uri sau diverse activitati profesionale. Este situat la parterul unui bloc nou rezidential dispus pe 7 niveluri, orientat inspre curtea interioara, situat la limita cartierelor dintre Andrei Muresanu si Gheorgheni. Avand o suprafata de 94,8 mp, este compartimentat in 2 unitati separate, fiecare cu intrare proprie si grup sanitar. Spatiul permite multiple configuratii, putand fi amenajat ca un open space sau divizat in functie de necesitatile activitatii dumneavoastra. Predarea imobilului va fi la stadiul finisat cu gresie, faianta, vopsea lavabila, instalatii sanitare complete in cele 2 grupuri sanitare si incalzire prin centrala proprie in pardoseala. Datorita amplasamentului sau strategic, intr-o zona in dezvoltare cu cerere mare pentru spatii comerciale si activitati profesionale, precum si cu un flux ridicat de pietoni zilnic, acest spatiu este ideal pentru diverse tipuri de afaceri comerciale. Exista posibilitatea parcarii la comun in curtea interioara, cu acces controlat, sau in apropierea zonei. *La pretul afisat de vanzare se adauga TVA Pentru mai multe detalii, nu ezitati sa ne contactati!