
Utilitati generale: Electricitate, Curent trifazic, Apa, Gaz, Canalizare
Sistem de incalzire: Centrala termica, Calorifere
Climatizare: Aer conditionat
Finisaje:Podele (Parchet, Gresie)
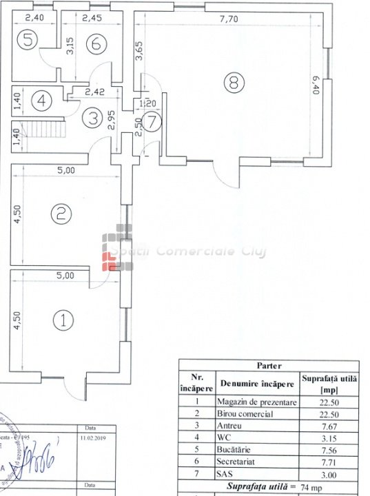
Va propunem spre vânzare o clădire cu destinație comercială și de birouri, situată în cartierul Grigorescu, într-o zonă cu vad foarte bun, în imediata apropiere a stației de autobuz, cu acces facil și vizibilitate excelentă din stradă. Imobilul este dispus pe două niveluri (parter și mansardă) și are o suprafață construită desfășurată de 253 mp, respectiv o suprafață utilă de 153 mp. Este ideal pentru activități de birou, servicii sau cabinete și reprezintă o oportunitate excelentă de investiție, fiind în prezent închiriat către chiriași stabili, cu randament imediat. Teren total: 299 mp Front stradal: 13,5 metri Compartimentare: Parter: 3 birouri, baie, antreu, scară interioară Mansardă: 2 birouri, hol, baie Construcția este solidă, realizată pe fundații din beton armat, cu zidărie din cărămidă și acoperiș tip terasă. Beneficiază de garaj auto și curte proprie, care poate fi utilizată pentru parcare, zonă de relaxare sau extindere. Caracteristici principale: Zonă cu vad comercial, trafic pietonal și rutier intens Acces imediat la mijloacele de transport în comun Spațiu luminos, bine întreținut Proprietate închiriată, cu venit pasiv garantat Posibilitate de parcare în curte Acces auto facil Dotări și utilități: Centrală termică proprie Contorizare individuală Utilități complete Posibilitate de recompartimentare și personalizare Pentru informații suplimentare sau pentru programarea unei vizionări, vă invităm să ne contactați. Această proprietate oferă combinația perfectă între amplasare, funcționalitate și potențial investițional.