Birou de vanzare, 4000m2 in Cluj-napoca, zona Grigorescu

Pret:
ID: P53880
Ma intereseaza oferta Adauga la Favorite
Caracteristici
Tip imobil:
cladire de birouri
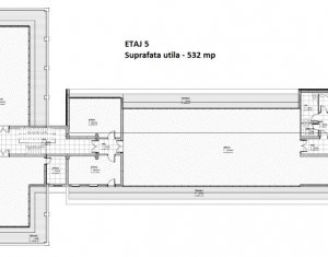
Suprafata utila:
4000 m2
Nr. incaperi:
1
Bai:
5
Terase:
1
Nr. parcari:
75
Nr. garaje:
--
Denumire imobil:
--
Clasa birouri:
A
Etaj:
1/5
Regim de inaltime:
D+P+5E
Constructie din:
Beton
Anul constructiei:
--
Suprafata construita:
4900 m2
Suprafata terase:
--
Suprafata teren:
--
Suprafata curte:
4500 m2
Utilitati

Utilitati generale: Electricitate, Curent trifazic, Apa, Gaz, Canalizare

Finisaje:Izolatii termice (Exterior, Bloc izolat termic), Ferestre cu geam termopan (PVC), Iluminat (Spoturi, Exterior cladire, Lumina naturala)

Dotari: Contorizare (Nemobilat, Apometre, Contor caldura), Dotari imobil (Interfon, Lift, Curte), CFR, Parcare proprie, Spatiu verde amenajat

Alte detalii zona

Imobil construit pe stâlpi și cadre din beton Interiorul este la stadiul de "rosu" 2 casa scarii, 4 lifturi, terasa, utilități și curent de mare putere Are suprafata totala de 4900 mp, cu dispunere D+P+5E. Fiecare etaj are compartimentare open space si contorizare separata. In curte sunt amenajate 75 locuri de parcare.

Contact agentie

Formular de contact

Nume:
Telefon:
Email:
Mesaj: